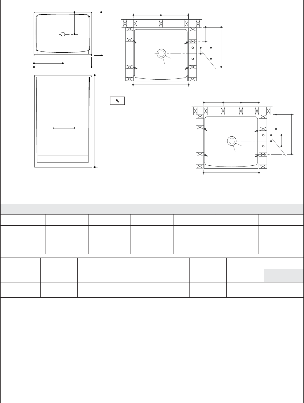
Installation Guide

Roughing-In
ABCDEF
62010100 32
(81.3 cm)
16
(40.6 cm)
35-1/4
(89.5 cm)
16
(40.6 cm)
73-1/4
(186.1 cm)
16
(40.6 cm)
62020100 36
(91.4 cm)
18
(45.7 cm)
35-1/4
(89.5 cm)
16-1/4
(41.3 cm)
73-1/4
(186.1 cm)
10
(25.4 cm)
GHJ KL MN
62010100 3-5/16
(8.4 cm) D.
4-1/2
(11.4 cm) D.
10
(25.4 cm)
8
(20.3 cm)
4
(10.2 cm)
22-1/2
(57.2 cm)
62020100 3-5/16
(8.4 cm) D.
4-1/2
(11.4 cm) D.
10
(25.4 cm)
8
(20.3 cm)
4
(10.2 cm)
26
(66 cm)
16
(40.6 cm)
IMPORTANT! Dimensions given in the roughing-in information are critical for proper installation.
Construct the framing and plumbing accurately.
IMPORTANT! All dimensions are nominal. The stud opening tolerance is plus 1/8 (3 mm) and minus 0.
NOTE: If a firewall is required, roughing-in dimensions must be increased according to the thickness of
the firewall material. Stud opening dimensions must be measured toward the exposed side of the wall
material.
NOTE: If installing the shower to a masonry wall, make provisions for plumbing connections. Construct a
separate frame wall at least 6 (15.2 cm) from the masonry wall.
The receptor and optional wall surrounds can be installed directly to the framing studs, over wallboard, or
over other water-resistant material. When installing over wallboard or other water-resistant wall material, the
framing dimensions must be increased to accommodate the material thickness.
C
B
A
E
FF
G
H
J
A
K
L
M
FFN
G
H
J
A
K
L
M
D
Diagrams shown are representative and for use with the table only.
Your fixture may appear different from the illustrations.
Recommended Roofing
Nail Locations (4 total)
Sterling 3 1020187-2-F