Installation Guide

Plan de raccordement
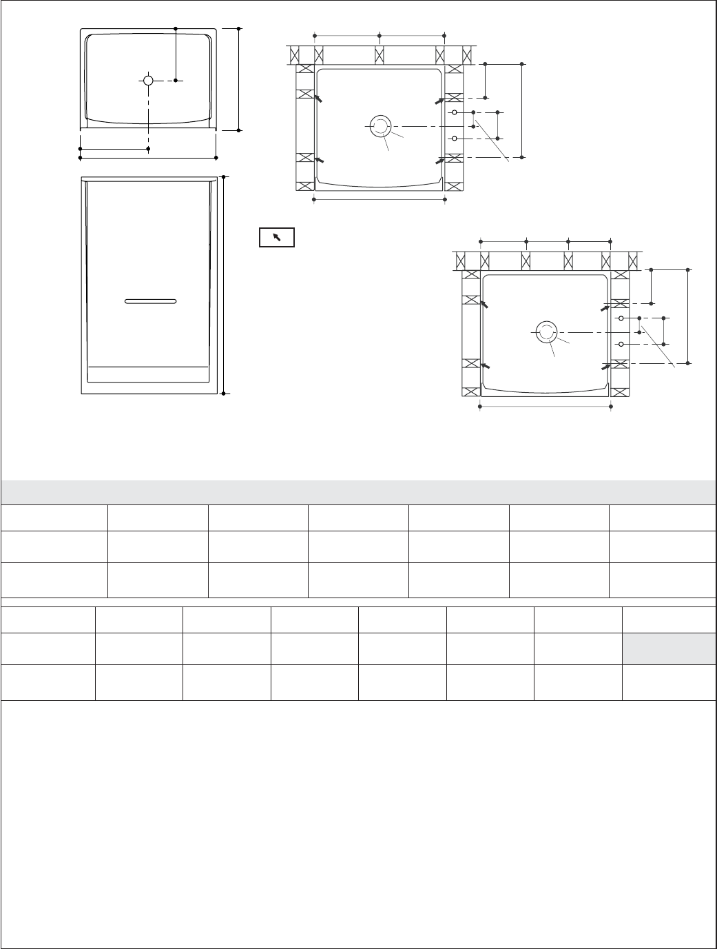
ABCDEF
62010100 32
(81,3 cm)
16
(40,6 cm)
35-1/4
(89,5 cm)
16
(40,6 cm)
73-1/4
(186,1 cm)
16
(40,6 cm)
62020100 36
(91,4 cm)
18
(45,7 cm)
35-1/4
(89,5 cm)
16-1/4
(41,3 cm)
73-1/4
(186,1 cm)
10
(25,4 cm)
GHJ KL MN
62010100 3-5/16
Ø (8,4 cm)
4-1/2
Ø (11,4 cm)
10
(25,4 cm)
8
(20,3 cm)
4
(10,2 cm)
22-1/2
(57,2 cm)
62020100 3-5/16
Ø (8,4 cm)
4-1/2
Ø (11,4 cm)
10
(25,4 cm)
8
(20,3 cm)
4
(10,2 cm)
26
(66 cm)
16
(40,6 cm)
IMPORTANT ! Les dimensions fournies dans le plan du raccordement sont critiques pour une bonne
installation. Construire le cadre et la plomberie avec exactitude.
IMPORTANT ! Toutes les dimensions sont nominales. La tolérance d’ouverture du montant est de plus
1/8 (3 mm) et moins 0.
REMARQUE : Si un pare-feu est requis, les dimensions de raccordement devront être augmentées en
fonction de l’épaisseur du matériau du pare-feu. Les dimensions d’ouverture des montants doivent être
mesurées vers le côté exposé du matériau du mur .
REMARQUE : Si cette douche est installée sur un mur en maçonnerie, prendre des dispositions pour les
raccordements de la plomberie. Construire un mur séparé à un minimum de 6 (15,2 cm) du mur de
maçonnerie.
Le receveur et les murs avoisinants optionnels peuvent être directement installés sur les montants du cadre,
sur un panneau de revêtement ou tout autre matériau hydrorésistant. Lors de l’installation sur un panneau
C
B
A
E
FF
G
H
J
A
K
L
M
FFN
G
H
J
A
K
L
M
D
Emplacements
recommandés des
clous pour toiture
(total 4)
Les diagrammes montrés sont à titre représentatif et pour utilisation avec la
table uniquement. L'appareil peut apparaître différent des illustrations.
Sterling Français-3 1020187-2-F