Specification

Technical Information
Fixture*: shipping weight
Complete bath and wall unit 125 lbs (57 kg)
Complete wall set 62 lbs (28.1 kg)
End wall set 32 lbs (14.5 kg)
Bath only, single pack 63 lbs (28.6 kg)
Bath only, four pack 210 lbs (95.3 kg)
* Approximate measurements for comparison only.
Fixture*: water depth capacity
To overflow 9-3/8″ (23.8 cm) 42 gal (159 L)
* Approximate measurements for comparison only.
Model door maximum
width
door maximum
height
61030110
61030120
61030410
61030420
56-3/4″ (144.1 cm)* 57″ (144.8 cm)
* Varies with alternative walls.
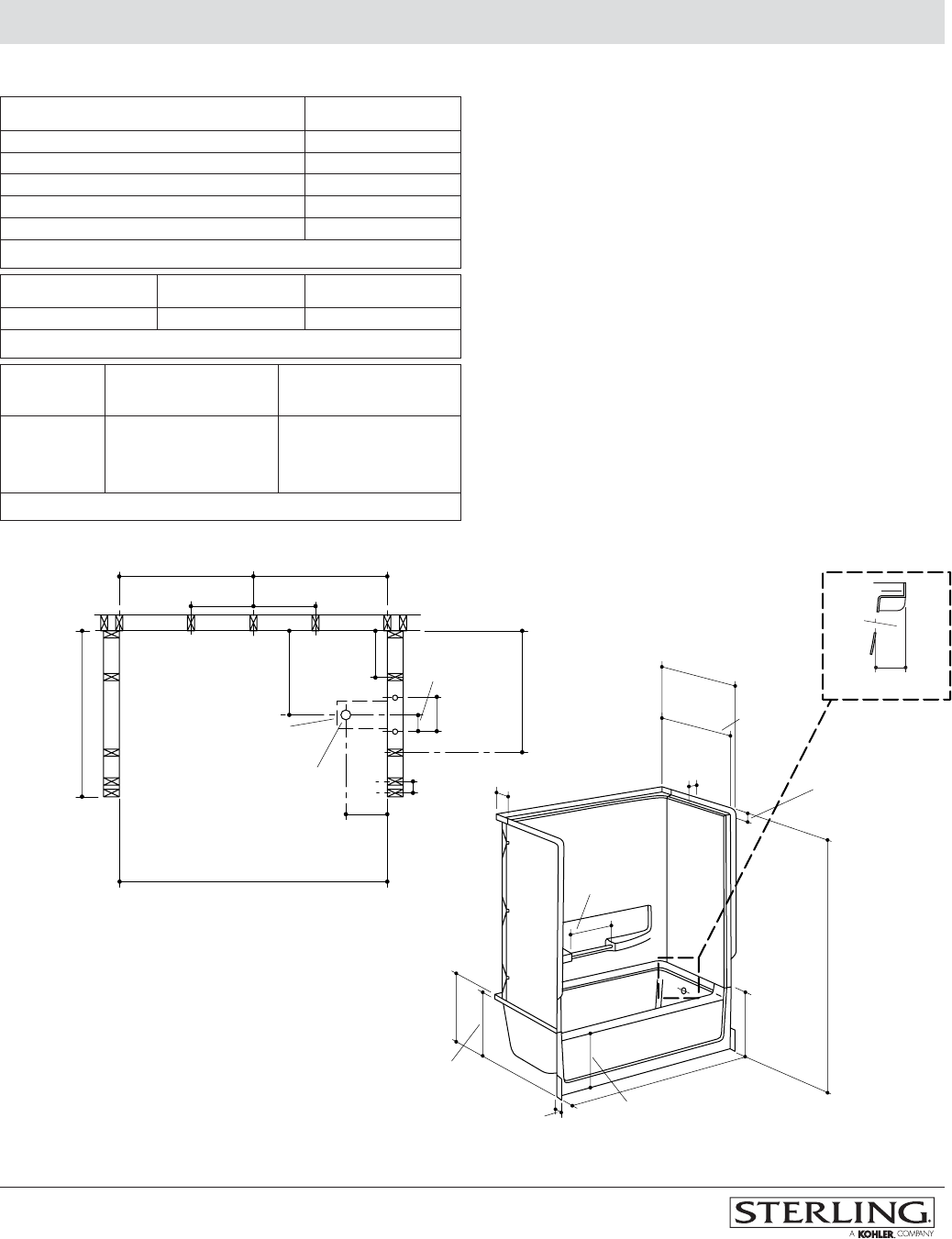
Installation Notes
Install this product according to the installation guide.
Size the drain cutout to fit the drain assembly that will be
used.
Double studding is recommended for pivot shower door
installations.
Studs should be positioned roughly as shown.
60" (152.4 cm)
73-1/4"
(186.1 cm)
1-5/8"
(4.1 cm)
30"
(76.2 cm)
31-1/4"
(79.4 cm)
18"
(45.7 cm)
17-5/16"
(44 cm)
17"
(43.2 cm)
60-1/8" (152.7 cm) Min
60-1/4" (153 cm) Max
7-3/4"
(19.7 cm)
4"
(10.2 cm)
8"
(20.3 cm)
22-1/4"
(56.5 cm)
14-1/4"
(36.2 cm)
8"
(20.3 cm)
31-1/4"
(79.4 cm)
30" (76.2 cm)
30" (76.2 cm)
14" (35.6 cm)14" (35.6 cm)
4-1/8" (10.5 cm)
1-1/4" (3.2 cm)
2" (5.1 cm)
D. Drain
15" (38.1 cm)
Drain Cutout
3-1/2"
(8.9 cm)
61030120
17" (43.2 cm)
2-1/2" (6.4 cm)
1-1/4"
(3.2 cm)
Overflow
Detail
Product Diagram
ADVANTAGETM
ADVANTAGETM 60″ (152.4 cm) BATH AND WALL SURROUND
Page2of2
1018998-4-
H


