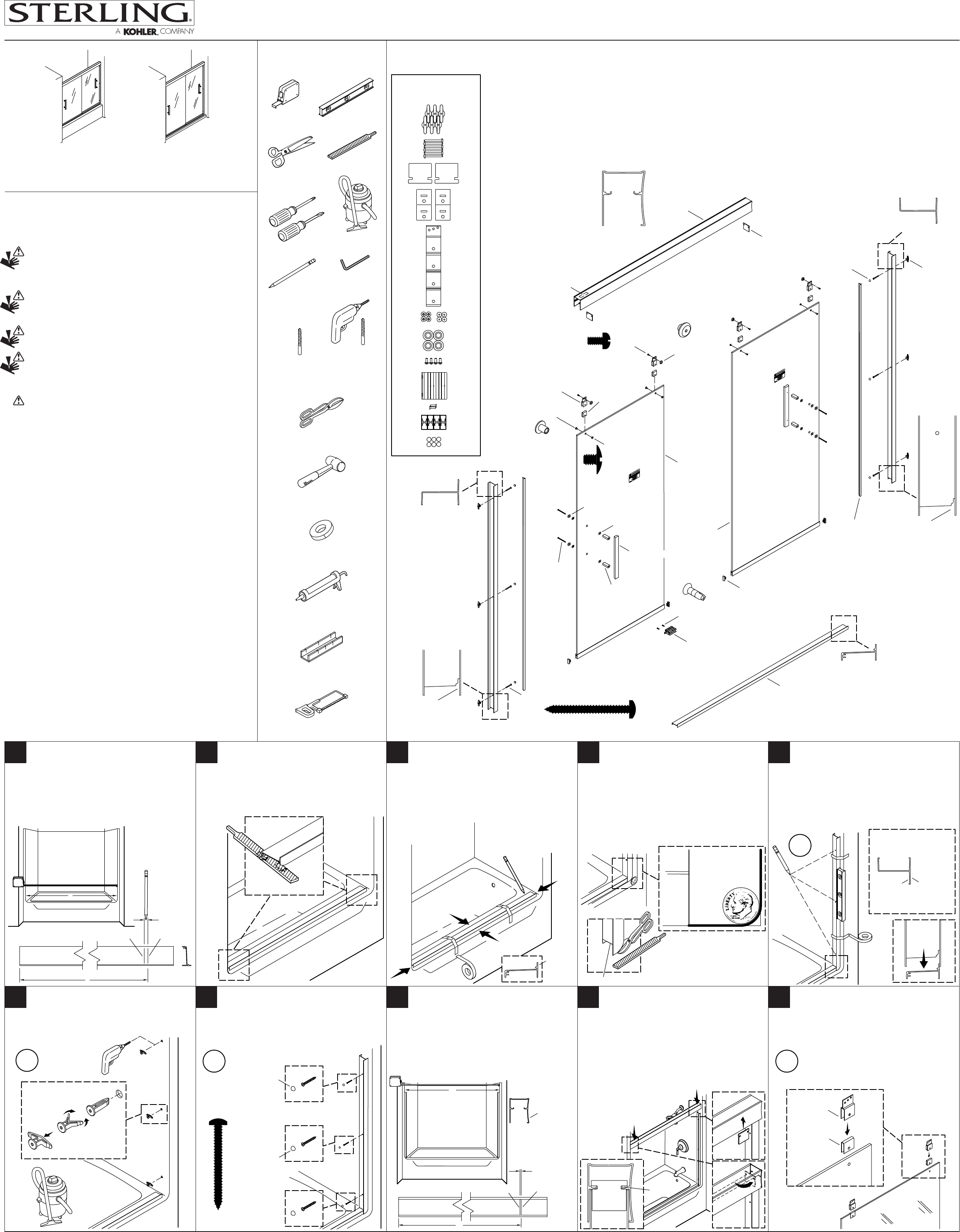
Installation Instructions

Pata
1/32" (1 mm)
Línea
de corte
Marca "B"
B
Carril
superior
B
#8-18 x 1-1/2"
Cubretornillo
Cubretornillo
x2
x2
3
2
1
Muesca
Rieles
Pata larga
Exterior de
la ducha
Jamba mural -
Vista superior
x2
Soporte de
suspensión
Empaque
x2
Tijeras para chapa
9/64"
Caja de ingletes
Hoja de sierra de 32-dientes por pulgada
Cinta de enmascarar
Sellador 100% de silicona
Mazo de goma
Broca para mampostería
de 5/16" para azulejo
5/16"
1218520**
Paquete al vacío de herrajes
1219162
Tapa de extremo
Tornillo
1048208-C
Jamba mural*
Empaque
1213732
Tuerca cilíndrica
1050048-A
#8-32 x 3/8"
#8-32 x 1/4"
Tornillo
1051142-A
Rueda
1050047
Soporte de suspensión
1219763-01**
Perno
1077763-A
Panel izquierdo
de la puerta*
Jamba mural*
Etiqueta con el número
de serie
1077762
Anclaje
1218971
Tope
1031943**
Cubretornillo
1214505-01**
Carril superior
1056868-A
Tornillo
1218476**
Guía central
#8-18 x 1-1/2"
1213333-01**
Carril inferior
1219930-01**
Manija
Panel derecho
de la puerta*
Sello de
barrido*
1219002
Espaciador
1216764-01**
Poste
1216847**
Placa posterior
1219005-A
Tornillo
Muesca inferior de
la jamba mural
Muesca inferior
de la jamba mural
A
A
Marca "A"
Línea de corte
1/4" (6 mm)
Mida la distancia "A." Reste 1/4" (6 mm) o el
ancho de un lápiz número 2 de la dimensión "A"
y corte el carril inferior.
Coloque el carril inferior en el centro del reborde.
De ser necesario, lime los extremos para igualar
las esquinas.
Centre el carril inferior en el reborde con la pata
hacia el exterior. Con cinta adhesiva fije el carril
inferior en su lugar y marque la posición.
¡Importante! El carril inferior y la jamba mural
deben quedar planos contra el reborde de
la ducha y contra la pared. De ser necesario,
recorte y lime la jamba mural. Utilice una
moneda para igualar y transferir el radio de la
esquina de la ducha a la jamba mural.
Coloque las jambas murales sobre el carril
inferior. Coloque la pata larga de la jamba mural
hacia el exterior de la ducha. Aplome ambas
jambas murales. Marque los orificios para
tornillo.
Retire las jambas murales. Taladre orificios de
5/16" en las paredes e introduzca los anclajes.
Vuelva a colocar ambas jambas murales. Fije las
jambas murales con tornillos.
Mida la distancia "B" arriba de las jambas
murales. Reste 1/32" (1 mm) o el ancho de una
hoja de sierra de la distancia "B." Marque y corte
el carril superior.
Coloque el carril superior sobre las jambas
murales (cualquier lado puede quedar hacia
fuera). A cada extremo del carril superior
introduzca y gire un tope en su lugar sobre
los rieles. Deslice los topes contra las jambas
murales.
Para ambas puertas, deslice un empaque sobre
el lado superior del panel de vidrio y dentro
de cada orificio de fijación. Presione el soporte
de suspensión sobre el empaque y alinee los
soportes de suspensión con los orificios de
fijación.
Puertas corredizas de ducha Serie 5400 de vidrio pesado
Puertas corredizas de duchaPuertas corredizas de bañera
51218556-2-G
EE.UU./Canadá: 1-800-STERLING (1-800-783-7546)
México: 001-877-680-1310
1218556-2-G
Instrucciones de instalación y cuidado
*¿Necesita ayuda? Comuníquese con el Centro de Atención al Cliente de STERLING al
1-800-STERLING (1-800-783-7546).
Para obtener información acerca de piezas de repuesto, cuidado y limpieza, y otro tipo de
información, visite www.sterlingplumbing.com.
**Se debe especifi car el código del acabado/color con el pedido.
Guarde este documento para servicio futuro.
Anote el número de modelo de la caja como referencia.
Número de modelo:______________
Herramientas requeridas Identifi cación de piezas
2 3 4
7 86 9
1 5
10
ADVERTENCIA: Riesgo de lesiones graves. Daños previos a la
instalación podrían ocasionar que el vidrio se quiebre en pedazos.
Antes de hacer la instalación revise el vidrio y todas las piezas, para
ver si presentan daños.
ADVERTENCIA: Riesgo de lesiones graves. Si la instalación se hace
de manera incorrecta, el vidrio podría quebrarse en pedazos. Siga
todas las instrucciones de instalación.
ADVERTENCIA: Riesgo de lesiones graves. No corte vidrio
templado. El vidrio templado se quiebra en pedazos si se corta.
ADVERTENCIA: Riesgo de lesiones graves. La puerta y los paneles
laterales de la ducha pueden quebrarse en pedazos. Revise con
regularidad el vidrio y todas las piezas para ver si presentan daños, si
algo falta o si hay piezas sueltas.
ADVERTENCIA: Riesgo de lesiones graves. Siempre utilice
anteojos de seguridad al cortar o taladrar.
SterlingPlumbing.com
¡IMPORTANTE! No toque los filos del vidrio templado con herramientas
ni con ningún otro objeto duro. No ponga el vidrio templado sin marco
directamente sobre el piso ni sobre ninguna otra superficie dura.
¡IMPORTANTE! Deje este manual para el usuario final.
Lea estas instrucciones antes de instalar o de utilizar este producto.
¡IMPORTANTE! No corte el carril superior a la misma longitud que el carril
inferior.
AVISO: La garantía no se aplica a un producto que haya sido modificado
o alterado de alguna forma que no sea alguna de las permitidas
expresamente en la Guía de instalación y cuidado.
Las paredes deben estar a menos de 3/8» (10 mm) de estar a plomo.
Cubra el desagüe con cinta de enmascarar para evitar perder piezas
pequeñas.
Siga las instrucciones de aplicación y de tiempo de secado del fabricante del
sellador de silicona.
Para ver esta instalación en video en línea, visite www.sterlingplumbing.
com.
Para el cuidado y la limpieza y otra información, visite
www.sterlingplumbing.com/care-and-cleaning.
Lea y siga todas las
instrucciones.
¡Información crítica!
¡Lea antes de instalar!