Installation Instructions

Cisailles de ferblantier
9/64"
Boîte à onglets
Lame de 32-dents par pouce
Ruban-cache
Mastic à la silicone à 100%
Maillet en caoutchouc
Mèche de maçonnerie de
5/16" pour carrelage
5/16"
1218520**
Emballage moulant de
visserie
1219162
Capuchon d'extrémité
Vis
1048208-C
Montant de
mur*
Joint statique
1213732
Écrou à
cylindrique
1050048-A
#8-32 x 3/8"
8-32 x 1/4"
Vis
1051142-A
Galet
1050047
Étrier de suspension
1219763-01**
Boulon
1077763-A
Panneau de porte
gauche*
Montant de mur*
Étiquette de numéro de série
1077762
Pièce
d'ancrage
1218971
Butoir
1031943**
Cache-vis
1214505-01**
Rail supérieur
1056868-A
Vis
1218476**
Guide de centre
#8-18 x 1-1/2"
1213333-01**
Rail inférieur
1219930-01**
Poignée
Panneau de
porte droit*
Joint
racleur*
1219002
Espaceur
1216764-01**
Montant
1216847**
Plaque arrière
1219005-A
Vis
Encoche de
montant de mur
inférieur
Encoche de
montant de mur
inférieur
Étrier de
suspension
Joint statique
x2
Rails
1/32" (1 mm)
Ligne
de découpe
Repère "B"
B
Rail
supérieur
B
#8-18 x 1-1/2"
Cache-vis
Cache-vis
x2
x2
3
2
1
Pied
Encoche
Pied long
Extérieur de
la douche
Montant de mur –
Vue du dessus
x2
A
A
Marque "A"
Ligne de découpe
1/4" (6 mm)
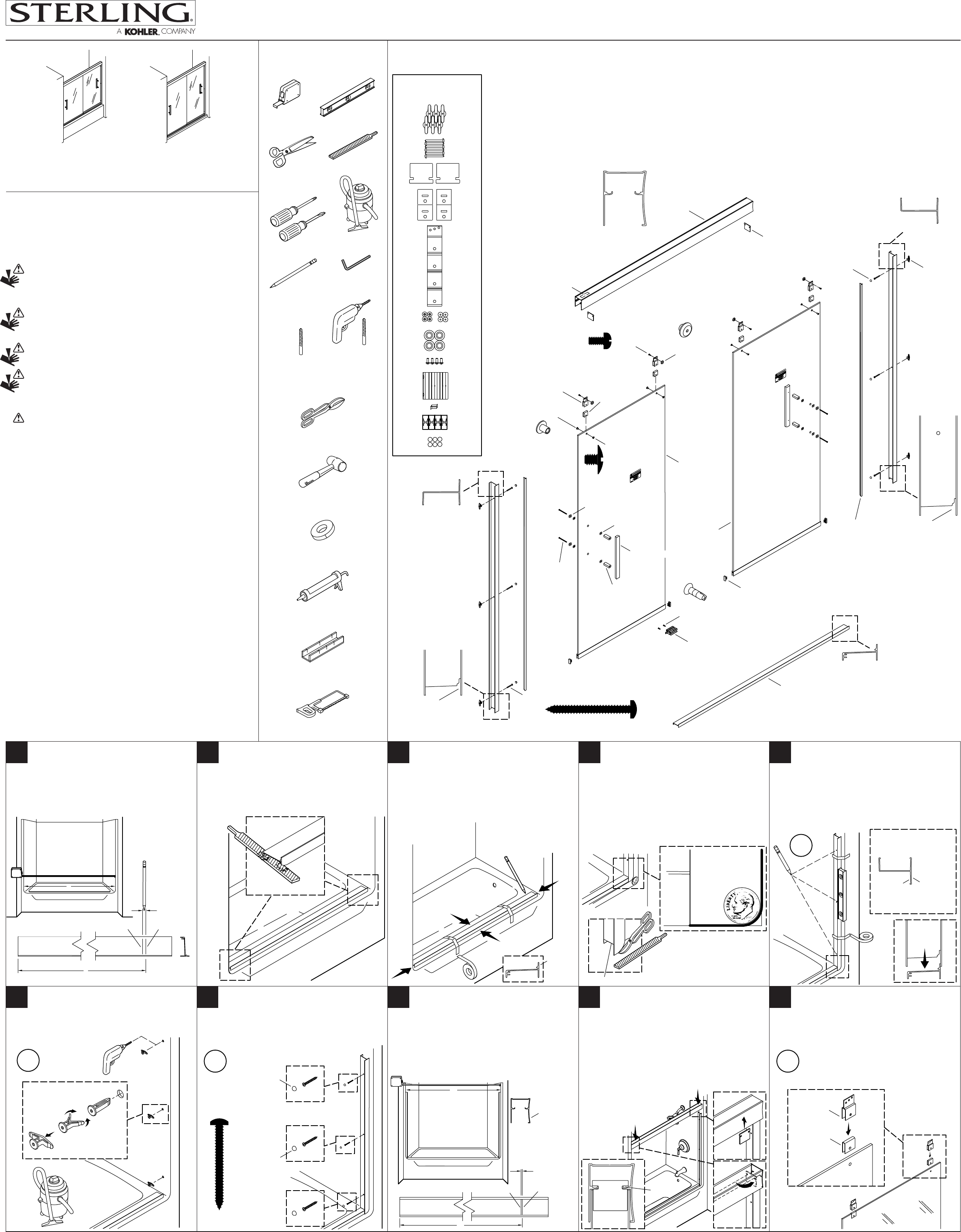
Portes de douche coulissantes Série 5400 en verre lourd
Mesurer la distance "A." Soustraire 1/4" (6 mm)
ou la largeur d'un crayon numéro 2 de "A" et
couper le rail inférieur.
Positionner le rail inférieur sur le centre du
rebord. Si nécessaire, limer les extrémités pour
faire correspondre les coins.
Centrer le rail inférieur sur le rebord avec le pied
dirigé vers l'extérieur. Faire tenir le rail inférieur
en place avec du ruban adhésif et marquer
l'emplacement.
Important! Le rail inférieur et le montant du
mur doivent être à plat contre le rebord de la
douche et le mur. Si nécessaire, couper et limer
le montant de mur. Utiliser une pièce de monnaie
pour faire correspondre et transférer le rayon du
coin de la douche au montant du mur.
Positionner les montants de mur par-dessus le
rail inférieur. Le pied long de chaque montant
de mur est tourné vers l'extérieur de la douche.
Mettre les deux montants de mur d'aplomb.
Marquer les trous de vis.
Retirer les montants de murs. Percer des trous
de 5/16" dans les murs et insérer les chevilles
d'ancrage.
Repositionner les deux montants de mur.
Sécuriser les montants de mur avec des vis.
Mesurer la distance "B" au-dessus des montants
de murs. Soustraire 1/32" (1 mm) ou la largeur
d'une lame de scie de "B." Marquer et couper le
rail supérieur.
Placer le rail supérieur par-dessus les montants
muraux (chacun des côtés peut être tourné vers
l'extérieur). À chaque extrémité du rail supérieur,
insérer et tourner un butoir pour le mettre en
place par-dessus les rails. Glisser les butoirs
contre les montants de mur.
Sur les deux portes, enfiler un joint statique par-
dessus le panneau de verre et dans chaque trou
de fixation. Pousser l'étrier de suspension sur le
joint et aligner les étriers de suspension avec les
trous de fixation.
Portes de douche
coulissantes
Portes de baignoire
coulissantes
31218556-2-G
É.-U./Canada: 1-800-STERLING (1-800-783-7546)
Mexique: 001-877-680-1310
1218556-2-G
Instructions d'installation et d'entretien
*Besoin d’aide? Appeler le centre de services à la clientèle de STERLING au
1-800-STERLING (1-800-783-7546).
Pour tout renseignement sur les pièces de rechange, l’entretien, le nettoyage, et autre,
visiter le site www.sterlingplumbing.com.
**Les codes de fi nition et/ou de couleur doivent être fournis au moment de la commande.
Conserver ce document pour référence.
Noter le numéro de modèle sur le carton d’emballage à titre de référence.
Nº du modèle:______________
Outils requis Identifi cation des pièces
2 3 4
7 86 9
1 5
10
AVERTISSEMENT: Risque de blessures graves. Des dommages
avant l'installation peuvent entraîner des éclatements de verre.
Inspecter le verre et toutes les pièces pour y rechercher des
dommages avant l'installation.
AVERTISSEMENT: Risque de blessures graves. Une installation
incorrecte peut entraîner des éclatements de verre. Suivre toutes les
instructions d'installation.
AVERTISSEMENT: Risque de blessures graves. Ne pas couper le
verre trempé. Le verre trempé éclate lorsqu'il est coupé.
AVERTISSEMENT: Risque de blessures graves. La porte de la
douche et les panneaux latéraux peuvent éclater. Inspecter
régulièrement le verre et toutes les pièces pour y rechercher des
dommages, ou des pièces manquantes ou desserrées.
AVERTISSEMENT: Risque de blessures graves. Toujours porter
des lunettes de sécurité pendant la découpe et le perçage.
IMPORTANT! Ne pas toucher les bords du verre trempé avec des outils ou
d’autres objets durs. Ne pas poser le verre trempé non encadré directement
sur le plancher ou sur une surface dure.
IMPORTANT! Laisser ce manuel pour l’utilisateur final.
Lire ces instructions avant d’installer ou d’utiliser ce produit.
IMPORTANT! Ne pas couper le rail supérieur à la même longueur que le
rail inférieur.
AVIS: La garantie ne s’applique pas aux produits qui ont été modifiés ou
altérés d’une autre façon que celle permise de manière expresse dans le
guide d’installation et d’entretien.
Les murs doivent être compris dans un rayon de 3/8» (10 mm) de l’aplomb.
Couvrir le drain avec du ruban adhésif pour éviter de perdre les petites
pièces.
Suivre les instructions du fabricant du mastic à la silicone en ce qui concerne
l’application et le temps de prise.
Pour regarder cette vidéo d’installation en ligne, visiter le site www.
sterlingplumbing.com.
Pour tout renseignement sur l’entretien, le nettoyage et autre, visiter le site
www.sterlingplumbing.com/care-and-cleaning.
SterlingPlumbing.com
Informations de première
importance!
Lire avant l’installation!
Lire et suivre toutes les
instructions.