Installation Guide

Ranura
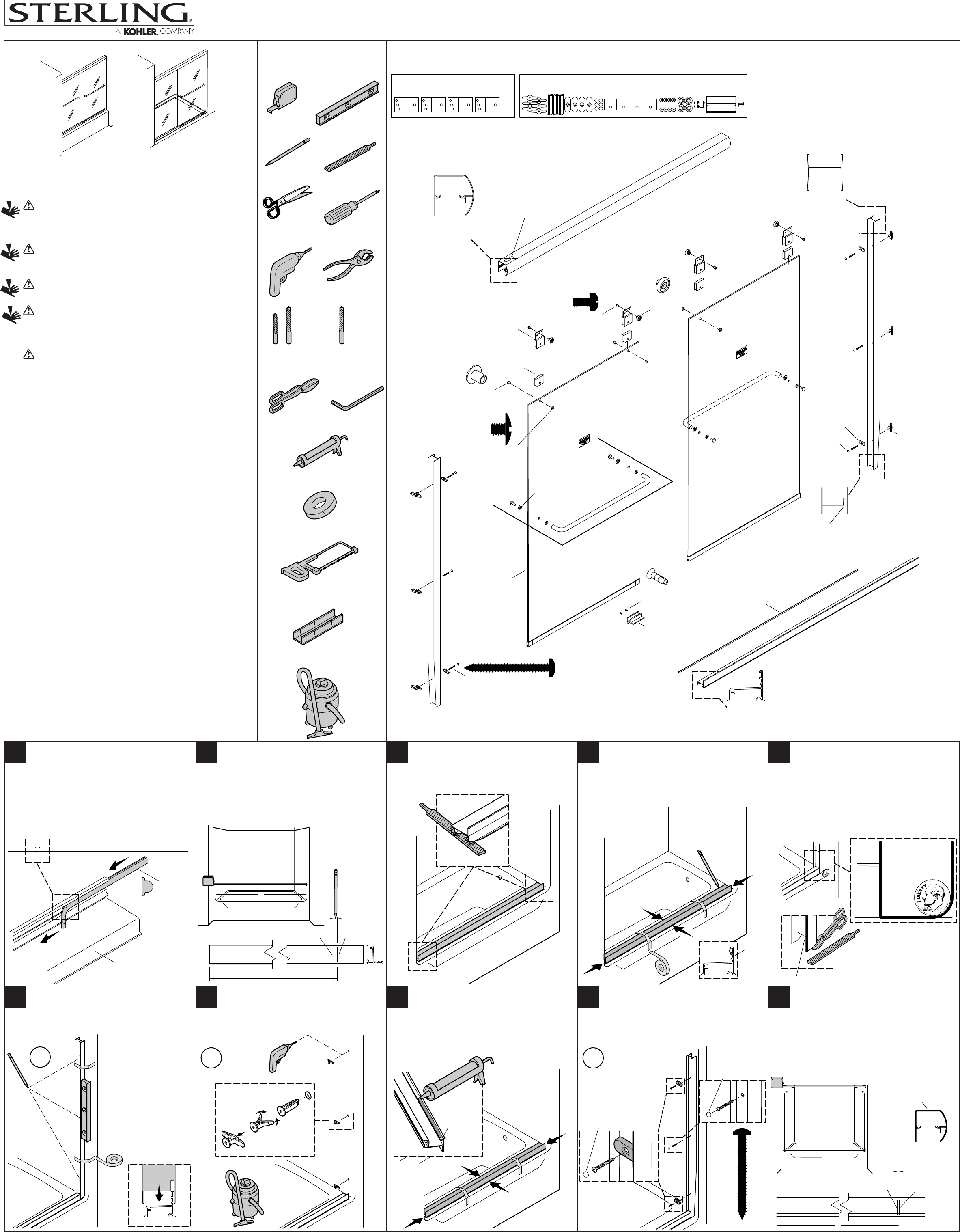
1
2
3
x2
x2
Pata
x2
#8-18 x 1-1/2"
Cubre tornillo
Cubre tornillo
Muesca
B
Marca "B"
Línea de corte
1/32" (1 mm)
B
Carril
superior
Tijeras para chapa
Caja de ingletes
Hoja de 32 dientes por pulgada
Cinta de enmascarar
Sellador 100% de silicona
1/16"
3/16", 5/16" Broca para mampostería
de 5/16" para azulejo
Etiqueta con número
de serie
1077762
Anclaje
1081001
Tope
1031943**
Cubre tornillo
1205305** Kit de soporte de suspensión 1203634 Paquete al vacío de herrajes
1058827-02*
Carril superior
1051142-A
Tornillo
#8-32 x 3/8"
1199426-01**
Soporte de suspensión
1050048-B
Tuerca cilíndrica
1077763-A
Perno
#8-32 x 1/4"
Jamba mural*
1093027
Espaciador (8 c/u)
1044585
Rueda
Panel de puerta*
1057704-02** [20" (508 mm)]
1057704-01** [24" (610 mm)]
Toallero de barra
1056868-A
Tornillo
1048208-C
Tornillo
#8-18 x 1-1/2"
1058294**
Guía central
1058626-02**
Carril inferior
1053530
Inserto
1199110
Empaque
Muesca inferior de la
jamba mural
Marca "A"
Línea de corte
1/4" (6 mm)
A
Inserto
Carril inferior
Deslice el extremo con muescas del inserto
dentro de la ranura y jale la muesca al extremo
del carril inferior. Recorte el inserto para que
quede al ras con el carril inferior.
Mida la distancia "A." Reste 1/4" (6 mm) o el
ancho de un lápiz número 2 de la dimensión "A"
y corte el carril inferior.
Coloque el carril inferior en el centro del reborde.
De ser necesario, lime los extremos para igualar
las esquinas.
Centre el carril inferior en el reborde con la
pata al exterior. Con cinta adhesiva fije el carril
inferior en su lugar y marque la posición.
¡Importante! El carril inferior y la jamba mural
deben quedar planos contra el reborde de la
ducha y contra la pared. De ser necesario, recorte
y lime la jamba mural. Utilice una moneda para
igualar y transferir el radio de la esquina de la
ducha a la jamba mural.
Coloque las jambas murales sobre el carril
inferior. Coloque a plomo ambas jambas murales.
Marque los orificios para tornillo.
Retire las jambas murales. Taladre orificios de
5/16" en las paredes e inserte los anclajes.
Aplique sellador de silicona en la ranura en
el lado inferior del carril inferior. Fije el carril
inferior al reborde a lo largo del lugar marcado.
Vuelva a colocar ambas jambas murales. Fije las
jambas murales con tornillos. Fije un tope en las
ubicaciones superior e inferior.
Mida la distancia "B" arriba de las jambas
murales. Reste 1/32" (1 mm) o el ancho de una
hoja de sierra de la distancia "B." Marque y corte
el carril superior.
Puertas corredizas de bañera y ducha Serie 5400
¡IMPORTANTE! No corte el carril superior a la misma longitud que el carril
inferior.
Las paredes deben estar a menos de 3/8" (10 mm). de estar a plomo
Cubra el desagüe con cinta adhesiva para evitar perder piezas pequeñas.
Siga las instrucciones de aplicación y de tiempo de secado del fabricante del
sellador de silicona.
Para ver esta instalación en línea visite la página del producto en
www.sterlingplumbing.com.
Para ver el cuidado, la limpieza y otra información visite
www.sterlingplumbing.com/care-and-cleaning.
Puertas corredizas de bañera
Puertas corredizas de ducha
51204884-2-C
EE.UU./Canadá: 1-800-STERLING (1-800-783-7546)
México: 001-877-680-1310
1204884-2-C
Instrucciones de instalación y cuidado
*Llame al Centro de Atención al Cliente para pedir piezas de repuesto.
**Se debe especifi car el código del acabado/color con el pedido.
Guarde este documento para servicio futuro.
Apunte el número de modelo de la caja para referencia.
Número de modelo:______________
Herramientas requeridas Identifi cación de piezas
2 3 4
7 86 9
1 5
10
ADVERTENCIA: Riesgo de lesiones graves. Daños previos a la
instalación podrían ocasionar que el vidrio se quiebre en pedazos.
Antes de hacer la instalación revise el vidrio y todas las piezas,
para ver si presentan daños.
ADVERTENCIA: Riesgo de lesiones graves. Si la instalación se
hace de manera incorrecta, el vidrio podría quebrarse en pedazos.
Siga todas las instrucciones de instalación.
ADVERTENCIA: Riesgo de lesiones graves. No corte vidrio
templado. El vidrio templado se quiebra en pedazos si se corta.
ADVERTENCIA: Riesgo de lesiones graves. La puerta y los
paneles laterales de la ducha pueden quebrarse en pedazos. Revise
con regularidad el vidrio y todas las piezas para ver si presentan
daños, si algo falta o si hay piezas sueltas.
ADVERTENCIA: Riesgo de lesiones graves. Siempre utilice
anteojos de seguridad al cortar o taladrar.
AVISO: No toque los bordes del vidrio templado con herramientas ni
con ningún otro objeto duro. No ponga el vidrio templado sin marco
directamente en el piso o en ninguna otra superficie dura.
¡IMPORTANTE! Deje este manual para el usuario final.
Lea estas instrucciones antes de utilizar o instalar este producto.
SterlingPlumbing.com