Installation Guide

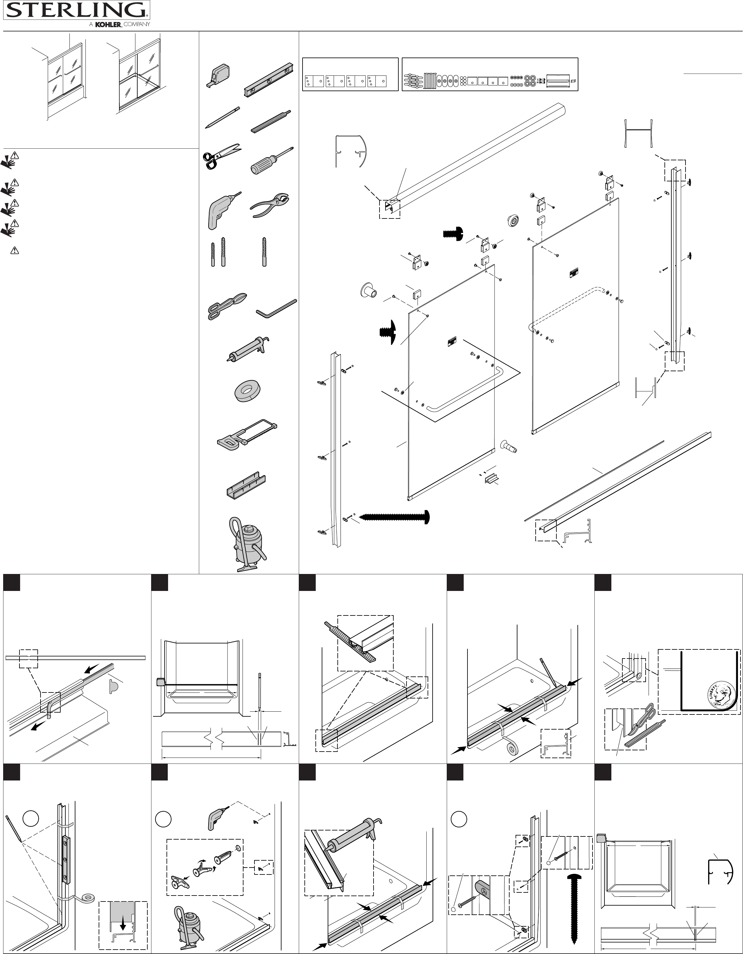
Groove
1
2
3
x2
x2
Leg
x2
#8-18 x 1-1/2"
Screw
Cover
Screw Cover
Notch
B
"B" Mark
Cut Line
1/32" (1 mm)
B
Top Track
Tin Snips
Miter Box
32 Teeth Per Inch Blade
Masking Tape
100% Silicone Sealant
1/16"
3/16", 5/16" 5/16" Masonry Bit for Tile
1077762
Anchor
1081001
Bumper
1031943**
Screw Cover
1205305** Hanger Bracket Kit 1203634 Hardware Skin Pack
1058827-02**
Top Track
1051142-A
Screw #8-32 x 3/8"
1199426-01**
Hanger Bracket
1050048-B
Barrel Nut
1077763-A
Bolt #8-32 x 1/4"
Wall Jamb*
1093027
Spacer (8 ea.)
1044585
Roller
Door Panel*
1057704-02**
[20" (508 mm)]
1057704-01**
[24" (610 mm)]
Towel Bar
1056868-A
Screw
1048208-C
Screw #8-18 x 1-1/2"
1058294**
Center Guide
1058626-02**
Bottom Track
1053530
Insert
1199110
Gasket
"A" Mark
Cut Line
1/4" (6 mm)
A
Insert
Bottom Track
Slide the notched end of the insert into the
groove and pull the notch to the end of the
bottom track. Trim the insert to be flush with the
bottom track.
Measure distance “A.” Subtract 1/4” (6 mm) or
the width of a number 2 pencil from “A” and cut
the bottom track.
Position the bottom track on the center of the
ledge. If needed, file the ends to match the
corners.
Center the bottom track on the ledge with the leg
to the outside. Tape the bottom track in place and
mark the position.
Important! The bottom track and wall jamb
must sit flat against the shower ledge and the
wall. If needed, trim and file the wall jamb. Use a
coin to match and to transfer the corner radius of
the shower to the wall jamb.
Position the wall jambs over the bottom track.
Plumb both wall jambs. Mark the screw holes.
Remove the wall jambs. Drill 5/16” holes into the
walls and insert the anchors.
Apply silicone sealant in the groove on the
underside of the bottom track. Secure the bottom
track to the ledge along the marked location.
Reposition both wall jambs. Secure the wall
jambs with screws. Attach a bumper at the top
and bottom locations.
Measure distance “B” above the wall jambs.
Subtract 1/32” (1 mm) or the width of a saw
blade from “B.” Mark and cut the top track.
5400 Series Sliding Shower and Bath Doors
IMPORTANT! Do not cut the top track the same length as the bottom track.
Walls must be within 3/8” (10 mm) of plumb.
Cover the drain with tape to avoid loss of small parts.
Follow the silicone sealant manufacturer’s instructions for application and
curing time.
To watch this installation online; visit the product page at
www.sterlingplumbing.com.
For care and cleaning and other information; visit
www.sterlingplumbing.com/care-and-cleaning.
Sliding Bath Doors Sliding Shower Doors
11204884-2-C
USA/Canada: 1-800-STERLING (1-800-783-7546)
México: 001-877-680-1310
1204884-2-C
Installation and Care Instructions
*Call Customer Care Center to order replacement parts.
**Finish/color code must be specifi ed when ordering.
Retain this document for future servicing.
Record model number from box for reference.
Model Number:______________
Required Tools Parts Identifi cation
2 3 4
7 86 9
1 5
10
WARNING: Risk of serious injury. Damage prior to installation can
result in glass shattering. Inspect the glass and all parts for damage
before installation.
WARNING: Risk of serious injury. Improper installation can result
in glass shattering. Follow all installation instructions.
WARNING: Risk of serious injury. Do not cut tempered glass.
Tempered glass will shatter if cut.
WARNING: Risk of serious injury. Shower door and side panels
can shatter. Regularly inspect the glass and all parts for damage,
missing, or loose parts.
WARNING: Risk of serious injury. Always wear safety glasses
while cutting and drilling.
NOTICE: Do not touch the edges of the tempered glass with tools or any
other hard objects. Do not set the unframed tempered glass directly on the
floor or any hard surface.
IMPORTANT! Leave this manual for the end user.
Read these instructions before installing or using this product.
SterlingPlumbing.com






