Installation Guide

Rainure
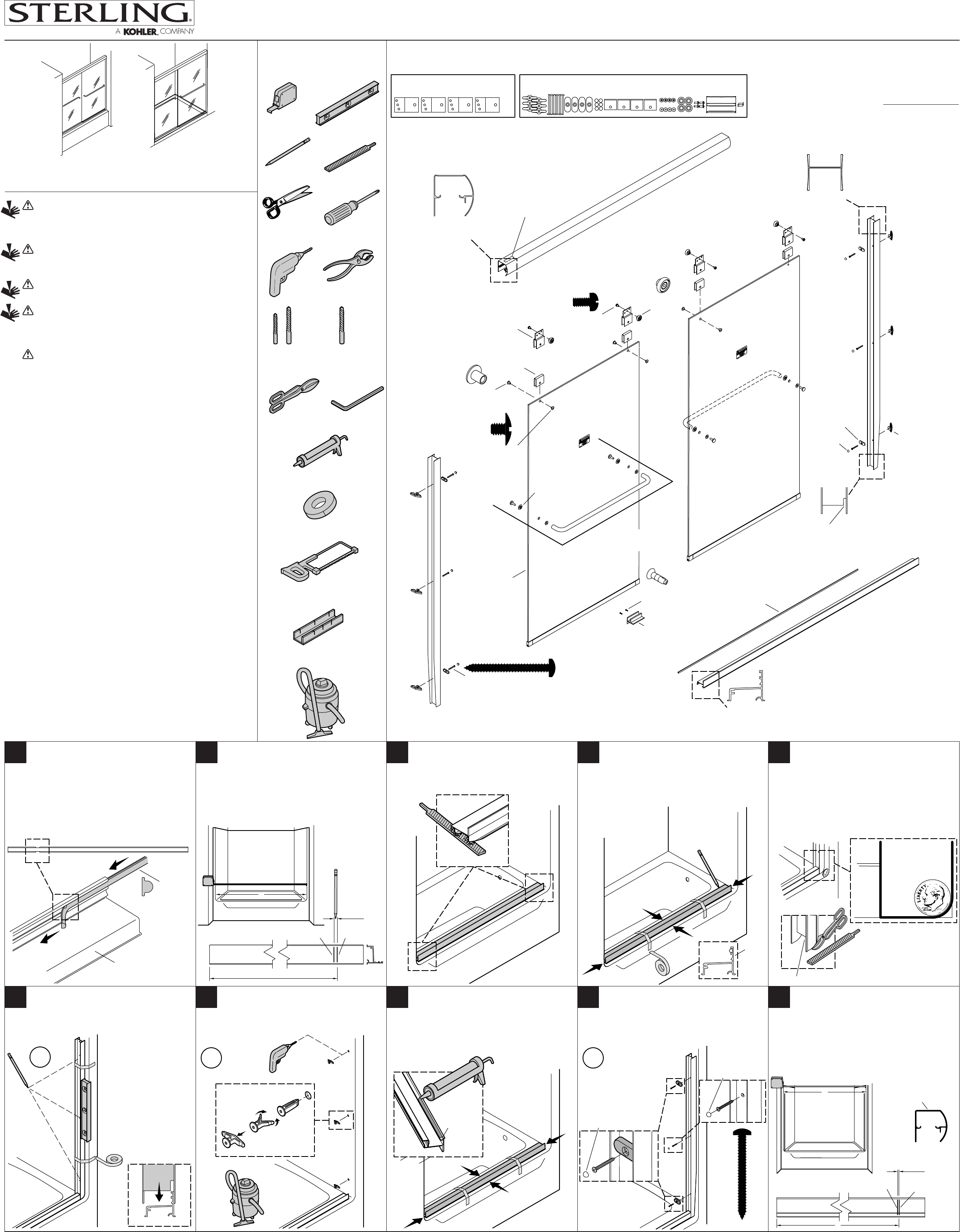
1
2
3
x2
x2
Pied
x2
#8-18 x 1-1/2"
Cache-vis
Cache-vis
Encoche
B
Marque "B"
Ligne de découpe
1/32" (1 mm)
B
Rail
supérieur
Cisailles de ferblantier
Boîte à onglets
Lame de 32 dents par pouce
Ruban-cache
Mastic 100% silicone
1/16"
3/16", 5/16" Mèche de maçonnerie
de 5/16" pour carrelage
Étiquette de numéro
de série
1077762
Cheville d'ancrage
1081001
Butoir
1031943*
Cache-vis
1205305** Kit d'étrier de suspension 1203634 Emballage moulant de visserie
1058827-02*
Raccord supérieur
1051142-A
Vis
#8-32 x 3/8"
1199426-01**
Étrier de suspension
1050048-B
Écrou à portée cylindrique
1077763-A
Boulon
#8-32 x 1/4"
Montant de mur*
1093027
Cale d'espacement (8 chaque)
1044585
Galet
Panneau de porte*
1057704-02** [20" (508 mm)]
1057704-01** [24" (610 mm)]
Porte-serviettes
1056868-A
Vis
1048208-C
Vis
#8-18 x 1-1/2"
1058294**
Guide central
1058626-02**
Rail inférieur
1053530
Insertion
1199110
Joint statique
Encoche de montant
de mur inférieur
Repère "A"
Ligne de découpe
1/4" (6 mm)
A
Insertion
Rail inférieur
Faire glisser l'extrémité avec encoche de
l'insertion dans la rainure et tirer sur l'encoche
jusqu'à l'extrémité du rail inférieur. Limer
l'insertion pour la mettre à ras du rail inférieur.
Mesurer la distance "A." Soustraire 1/4" (6 mm)
ou la largeur d'un crayon numéro 2 de "A" et
couper le rail inférieur.
Positionner le rail inférieur sur le centre du
rebord. Si nécessaire, limer les extrémités pour
faire correspondre les coins.
Centrer le rail inférieur sur le rebord avec le pied
dirigé vers l'extérieur. Faire tenir le rail inférieur
en place avec du ruban adhésif et marquer
l'emplacement.
Important! Le rail inférieur et le montant du
mur doivent être à plat contre le rebord de la
douche et le mur. Si nécessaire, couper et limer
le montant de mur. Utiliser une pièce de monnaie
pour faire correspondre et transférer le rayon du
coin de la douche au montant du mur.
Positionner les montants de mur par-dessus le
rail inférieur. Mettre les deux montants de mur
d'aplomb. Marquer les trous de vis.
Retirer les montants de murs. Percer des trous
de 5/16" dans les murs et insérer les chevilles
d'ancrage.
Appliquer du mastic à la silicone dans la
rainure située sur le dessous du rail inférieur.
Sécuriser le rail inférieur sur le rebord le long de
l'emplacement marqué.
Repositionner les deux montants de mur.
Sécuriser les montants de mur avec des vis. Fixer
une butée sur les emplacements supérieur et
inférieur.
Mesurer la distance "B" au-dessus des montants
de murs. Soustraire 1/32" (1 mm) ou la largeur
d'une lame de scie de "B." Marquer et couper le
rail supérieur.
Portes de douche et de baignoire coulissantes Série 5400
IMPORTANT! Ne pas couper le rail supérieur à la même longueur que le
rail inférieur.
Les murs doivent être compris dans un espace de 3/8" (10 mm) de l'aplomb.
Couvrir l'écoulement avec du ruban adhésif pour éviter de perdre les petites
pièces.
Suivre les instructions du fabricant du mastic à la silicone en ce qui concerne
l'application et le temps de prise.
Pour regarder cette installation en ligne, visiter la page du produit sur le site
www.sterlingplumbing.com.
Pour tout renseignement sur l'entretien et le nettoyage et pour toute autre
information, visiter www.sterlingplumbing.com/care-and-cleaning.
Portes de baignoire coulissantes
Portes de douche coulissantes
31204884-2-C
É.-U./Canada: 1-800-STERLING (1-800-783-7546)
Mexique: 001-877-680-1310
1204884-2-C
Instructions d'installation et d'entretien
*Appeler le service d'assistance à la clientèle pour commander des pièces de rechange.
**Les codes de fi nition et/ou de couleur doivent être fournis au moment de la commande.
Conserver ce document pour référence.
Noter le numéro de modèle sur le carton d'emballage
à titre de référence.
Nº du modèle:______________
Outils requis Identifi cation des pièces
2 3 4
7 86 9
1 5
10
AVERTISSEMENT: Risque de blessures graves. Des dommages
avant l'installation peuvent entraîner des éclatements de verre.
Inspecter le verre et toutes les pièces pour y rechercher des
dommages avant l'installation.
AVERTISSEMENT: Risque de blessures graves. Une installation
incorrecte peut entraîner des éclatements de verre. Suivre toutes
les instructions d'installation.
AVERTISSEMENT: Risque de blessures graves. Ne pas couper
le verre trempé. Le verre trempé éclate lorsqu'il est coupé.
AVERTISSEMENT: Risque de blessures graves. La porte de la
douche et les panneaux latéraux peuvent éclater. Inspecter
régulièrement le verre et toutes les pièces pour y rechercher des
dommages, ou des pièces manquantes ou desserrées.
AVERTISSEMENT: Risque de blessures graves. Toujours porter
des lunettes de sécurité pendant la découpe et le perçage.
AVIS: Ne pas toucher les bords du verre trempé avec des outils ou
d'autres objets durs. Ne pas poser le verre trempé non encadré directement
sur le plancher ou sur une surface dure.
IMPORTANT! Laisser ce manuel pour l'utilisateur final.
Lire ces instructions avant d'installer ou d'utiliser ce produit.
SterlingPlumbing.com






