User guide

Page 10 Royal Series Water Temperature Control Units
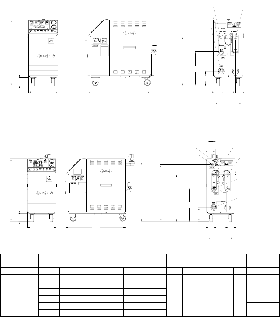
Figure 1
Typical Royal Series Water Temperature Control Unit and Specifications
Direct Injection
Closed Circuit
Model Dimensions Shipping
number Pump H W D weight
460 / 230 hp
kW
gpm
lpm
psig
kPa
in.
cm
in.
cm
in.
cm
lbs.
Kg
¾
0.56
30
113.6
25
172.4
1
0.75
35
132.5
30
206.9
2
1.50
50
189.3
30
206.9
3
2.24
60
227.1
35
241.3
210
96
5
3.73
75
283.9
54
372.3
2010,
9 kW heater
7½
5.60
90
454.2
63
434.4
28¾”
73.0
13”
33
28”
71.1
240
109
28"
28 3/4"
3 3/4"
13"
PART NO. 522-00205-00
EQUIPMENT.
OR DANGER TO OPERATING PERSONNEL.
BE SHUT OFF BEF ORE DIS CON NECTIN G OR SERV ICING THIS
5. THIS EQUI PMEN T MUST NOT BE USE D WHILE U NATT END ED.
6. VENT AND DRAIN PROVISIONS MUST NOT BE RESTRICTED.
7. AIR AND F L UI D S UPP LY SE R VI CE P R OV IS I ON S MUST ALWAYS
WORKING CONDITION TO AVOID ACCIDENTAL OVERHEATING
4. ALL CONTROL DEVICES MUST BE MAINTAINED IN PROPER
THIS SIGN MUST NOT BE REMOVED OR CAMOUFLAGED
DURING USE OF THIS EQUIPMENT.
OF THIS EQUIPMENT.
RECOGNITION OF AND COMPLIANCE WITH THE FOLLOWING
THIS EQUIPMENT CONTAINS FLUID, PIPING AND CONNECTIONS
WHIC H MAY BE EX TRE ME LY H OT AND COU LD CA USE S ERI OUS
PRECAUTIONS ARE THE SOLE RESPONSIBILITY OF THE USER
THIS EQUIPMENT, AND ALL APPLICABLE CODES.
PROPERLY FUSED AND SIZED TO MEET REQUIREMENTS OF
TO OPENING ANY ELECTRIC ENCLOSURE OR WORKING ON
1. EQUIPMENT MUST BE PROPERLY GROUNDED.
2. ELECTRIC POWER SUPPLY WIRING AND DEVICES MUST BE
3. ELECTRIC POWER SOURCE MUST BE DISCONNECTED PRIOR
ANY ELECTRIC COMPONENTS.
BURNS AND PERSONAL INJURY.
4. LOS DISPOSITIVOS DE MANDO DEBEN MANTENERSE EN PER-
PERSONAL QUE ATEINDE EL EQUIPO.
O TAPARSE MIENTRAS SE USA EL EQUIPO.
ESTA ADVERTENCIA O SENAL NO DEBE QUITARSE
DE D ES C O N EC T A R O S E RV IR EL E QU I P O.
SOBRECALENTAMIENTO ACCIDENTAL O EL DANO AL
O PURGA NO ESTAN RESTRINGIDAS UNICAMENTE AL FLUJO
DE FLUIDO Y AIRE DEBEN CERRARSE SIEMPRE ANTES
7. LAS DISPOSICIONES O CONEXIONES DE SUMINISTRO
6. LAS DISPOSICIONES SOBRE EL SERVICIO DE DRENAJE
5. ESTE EQUIPO NO DEBE SER USADO CUANDO NO HAY QUIEN
FECTO ESTADO DE FUNCIONAMIENTO PARA EVITAR EL
CORRECTO DEL FLUIDO.
LO ATIENDA.
PART NO. 522-00205-01
TRABAJO EN LOS COMPONENTES ELECTRICOS.
QUE CORRESPONDE A ESTE EQUIPO.
PUEDEN ESTAR PELIGROSAMENTE CALIENTES!
DE ABRIR LAS CAJAS ELECTRICAS O HACER CUALQUIER
3. DEBE DESCONECTARSE LA FUERZA ELECTRICA ANTES
TENER S U S FU S IB LES Y SE R D EL T A MA N O O CA PA CI DA D
ELECTRICA Y DISPOSITIVOS CORRESPONDIENTES DEBEN
2. EL ALAMBRADO PARA EL SUMINISTRO DE LA FUERZA
1. EL EQUIPO DEBE ESTAR CONECTADO A TIERRA EN FORMA
CIONES SON LA RESP ONSA BILI DAD EXCLU SIV A DEL US UARIO DE
CONOCIMI E NT O Y CUMP L I MI EN TO CON LAS S IG UI EN TE S PR EC AU-
ESTE EQUIPO CONTIENE FLUIDO, TUBERIA Y CONEXIONES QUE
DEBIDA.
ESTE EQUIPO.
21 7/16"
15 1/8"
2 3/4"
11 3/4"
2 3/4"
6 7/16"
COOLING WATER IN
COOLING WATER OUT
FROM PROCESS
TO PROCESS
28 3/4"
1. EQUIP MEN T M US T BE P ROP ER LY GROUN DED.
13"
3 3/4"
28"
3. ELECTRIC POWER SOURCE MUST BE DISCONNECTED PRIOR
2. ELECTRIC POWER SUPPLY WIRING AND DEVICES MUST BE
PROPERL Y F USE D A ND SI ZE D TO ME ET RE QUIR E MEN TS OF
THIS EQUIPMENT, AND ALL APPLICABLE CODES.
DURI NG US E OF T HI S EQ UIP MENT.
THIS SIGN MUST NOT BE REMOVED OR CAMOUFLAGED
ANY ELECTRIC COMPONE NTS.
4. ALL CON TROL D EV ICES M UST BE M AINTAINED I N PRO P ER
TO OPENING ANY ELECTRIC ENCLOSURE OR WORKING ON
WORKING CONDITION TO AVOID ACCIDENTAL OVERHEATING
7. AIR A ND FL UI D S UPP L Y SE RVIC E P R OVIS IONS MUST AL W AYS
6. VENT AND DRAIN PROVISIONS MUST NOT BE RESTRICTED.
5. THIS E QUI PME NT MUS T N OT BE USE D W HIL E U NAT TEN DED.
BE SHUT OFF BEFORE DISCONNECTING OR SERVICING THIS
OR DANGE R TO OP ER ATI N G PE RSO NNEL .
EQUIPM ENT.
PART NO. 522-00205-00
2. EL ALAMBRADO PARA EL SUMINISTRO DE LA FUERZA
ELECTRICA Y DISPOSITIVOS CORRESPONDIENTES DEBEN
TENER SUS FUSIBLES Y SER DEL TAMANO O CAPACIDAD
3. DEBE DESCONECTARSE LA FUERZA ELECTRICA ANTES
DE ABR IR L A S CAJ A S ELEC TR ICA S O HA CER CU ALQ UIER
4. LOS DISPOSITIVOS DE MANDO DEBEN MANTENERSE EN PER-
FECTO ESTADO DE FUNCIONAMIENTO PARA E VITAR EL
5. ESTE EQUIPO NO DEBE SER USADO CUANDO NO HAY QUIEN
6. LAS DISPOSI CIONES SO BRE EL SER VIC IO DE DRENAJE
7. LAS DISPOSICIONES O CONEXIONES DE SUMINISTRO
DE FLUIDO Y AIRE DEBEN CERRARSE SIEMPRE ANTES
O PURGA NO ESTAN RESTR INGI DAS UNICAM ENTE AL FLUJO
SOBRECA L ENT AM IE NTO AC C IDEN TAL O E L DANO AL
ESTA ADVERTENCIA O SENAL NO DEBE QUITARSE
TRABAJO EN LOS COMPO NE NTE S ELEC TR IC OS.
CORRECTO DEL FLUIDO.
DE DESCONECTAR O SERVIR EL EQU IPO.
O TAPA RS E MIE NTRA S SE USA E L EQUI PO.
QUE CORRESPONDE A ESTE EQUIPO.
LO ATIENDA.
PERSONAL QUE ATEINDE EL EQUIPO.
PART NO. 522-00205-01
OF THIS EQUI PME NT.
BURNS AND PERSONAL INJURY.
PRECAUTIONS AR E THE SOL E RESPON SIBILI TY OF THE US ER
WHICH MAY BE EXTREMELY HOT AND COULD CAUSE SERIOUS
THIS E QUI PMENT CO NT A I NS F LUID, PI P ING AND CONN E CTI O NS
RECOGNITION OF AND COMPLIANCE WITH THE FOLLOWING
ESTE EQUIPO CONTIENE FLUIDO, TUBERIA Y CONEXIONES QUE
CONOCIMIENTO Y CUMPLIMIENTO CON LAS SIGUIENTES PRECAU-
CIONES SON LA RESPONSABILIDAD EXCLUSIVA DEL USUARIO DE
1. EL EQU IP O DE BE EST AR CON ECT ADO A TI ER RA E N FOR MA
PUEDEN ESTAR PEL IGROS AMEN TE CALIENTE S!
ESTE EQUIPO.
DEBIDA.
27 1/8"
26 1/16"
21 7/16"
2 3/4"
11 3/4"
6 7/16"
15 1/8"
2 3/4"
PROCESS WATER IN
COOLING WATER IN
COOLING WATER OUT
1 15/16"
3 9/16"
PROCESS WATER VENT
TO PROCESS
FROM PROCESS










