Manual

Comfort Control Relay Panel (CCRP) Page 9
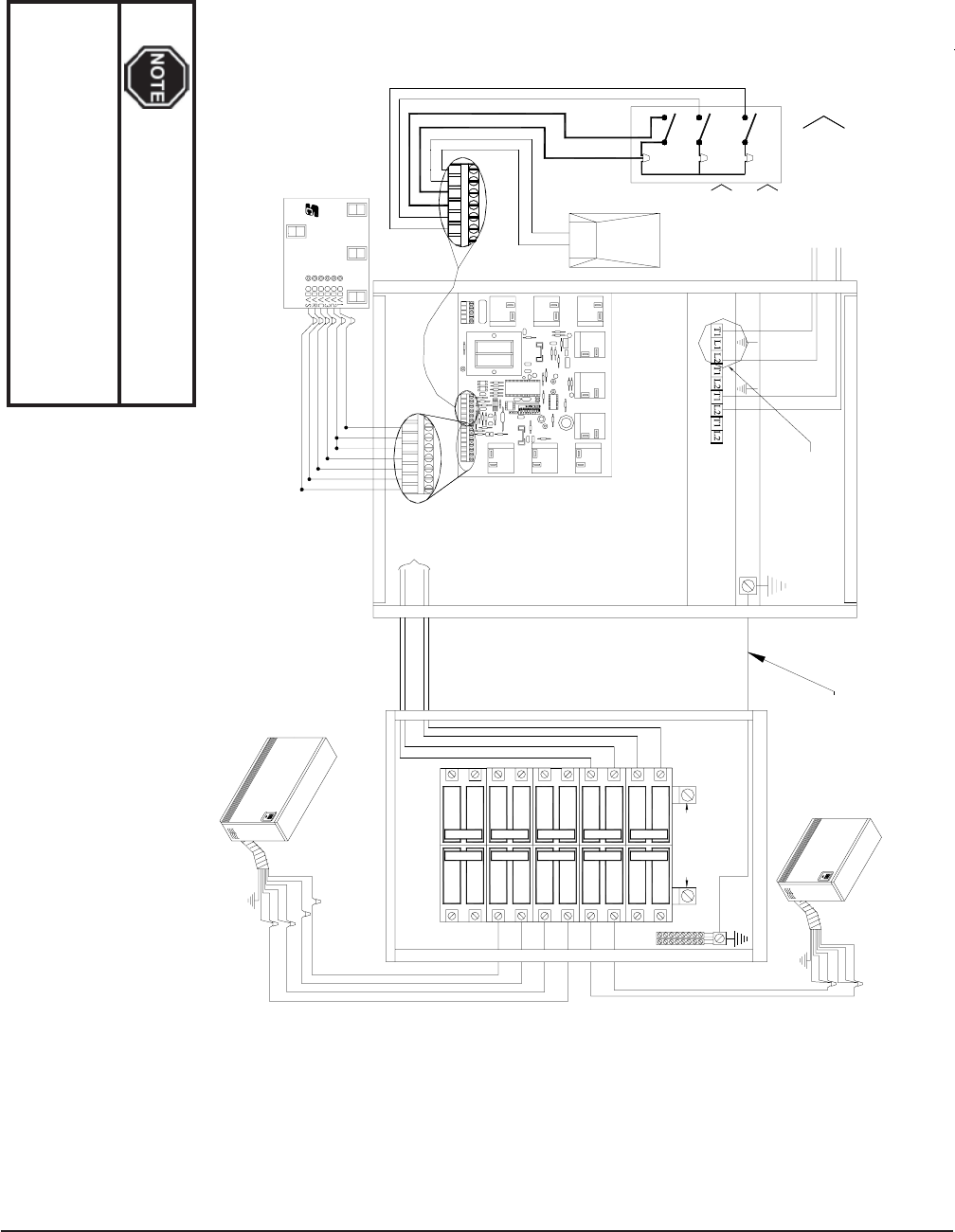
TYPICAL SYSTEM WIRING DIAGRAM - FOUR POLE
(Utilizing PLC Control with the Steffes 1000/2000/2100 Series Room Units)
Is Being Utilized By
PEAK CONTROL
R
LOW VOLTAGE
CONNECTIONS
Override Module
(OPTIONAL)
OS
OS
SWITCH
UTILITY
PEAK CONTROL
SWITCH
in the CCRP.)
Terminal Block
Override Common
Circuit 4 Override
Circuits 2 & 3 Override
Circuit 1 Override
CORPORATION
STEFFES
Override Hot
Override Switch
CIRCUIT 3
C
E
A
P
SENSOR
(OPTIONAL)
The Power Company.
REMOTE
OUTDOOR
CIRCUIT 1
(SEE NOTE 1)
CIRCUIT 2
OV3
LOW VOLTAGE
CONNECTIONS
OV1
OV2
OV4
OVS
OVR
OVC
the Relays and
the Factory to
Connected at
(This End is
Wire Leads.
Factory Installed
CIRCUIT 4
(20 Amp Circuit Maximum)
(30 Amp Circuit Maximum)
TO CONTROLLED LOAD
TO CONTROLLED LOAD
(See Note 3)
Wiring
Installed
Field
ROOM
TEMPERATURE
SET BACK
UTILITY
ANTICIPATED
Room Temperature
Set Back is Optional
Only if Anticipated Peak
CIRCUIT ONE
20 AMP MAX
OPTION
A RED CIRCUIT.
Red Circuit 2
TYPICAL SUPPLY
Red Circuit 1
Black Circuit 1
Black Circuit 2
CIRCUITS
5
4
3
2
1
10
9
8
7
240VAC SOURCE
6
BLUE
BLUE
BLACK
GREEN
DUAL
OPTION
FEED
BLACK
RED
RED
GREEN
BLUE
BLACK
BLUE
BLACK
RED
RED
SYSTEM GROUND
(SEE NOTE 2)
NOTE:
MODELS 2002 AND
2003 DO NOT HAVE
SINGLE
FEED
CIRCUIT 2
CIRCUIT 3
CIRCUIT 1
CIR CUIT 4
A panel label is provided in the package of
screws used to mount the front panel. Apply
this label to the service panel to identify the
breaker feeding CCRP circuit 1.
IMPORTANT
1. Loads connected between L1 and L2 on circuit 1 will be uninterrupted. Loads con-
nected between T1 and L2 on circuit 1 will be interrupted. CCRP circuit 1 feeds both
output circuit 1 and the panels internal controls. Maximum fuse size is 20 amps.
2. The system grounding and bonding must be sized and installed in compliance with all
applicable codes.
3. Any loads requiring greater than a 20 amp circuit, such as a water heater, must never
be connected to circuit 1 in the CCRP as circuit 1 is only capable of controlling a
maximum of a 20 amp circuit.