User's Manual

2
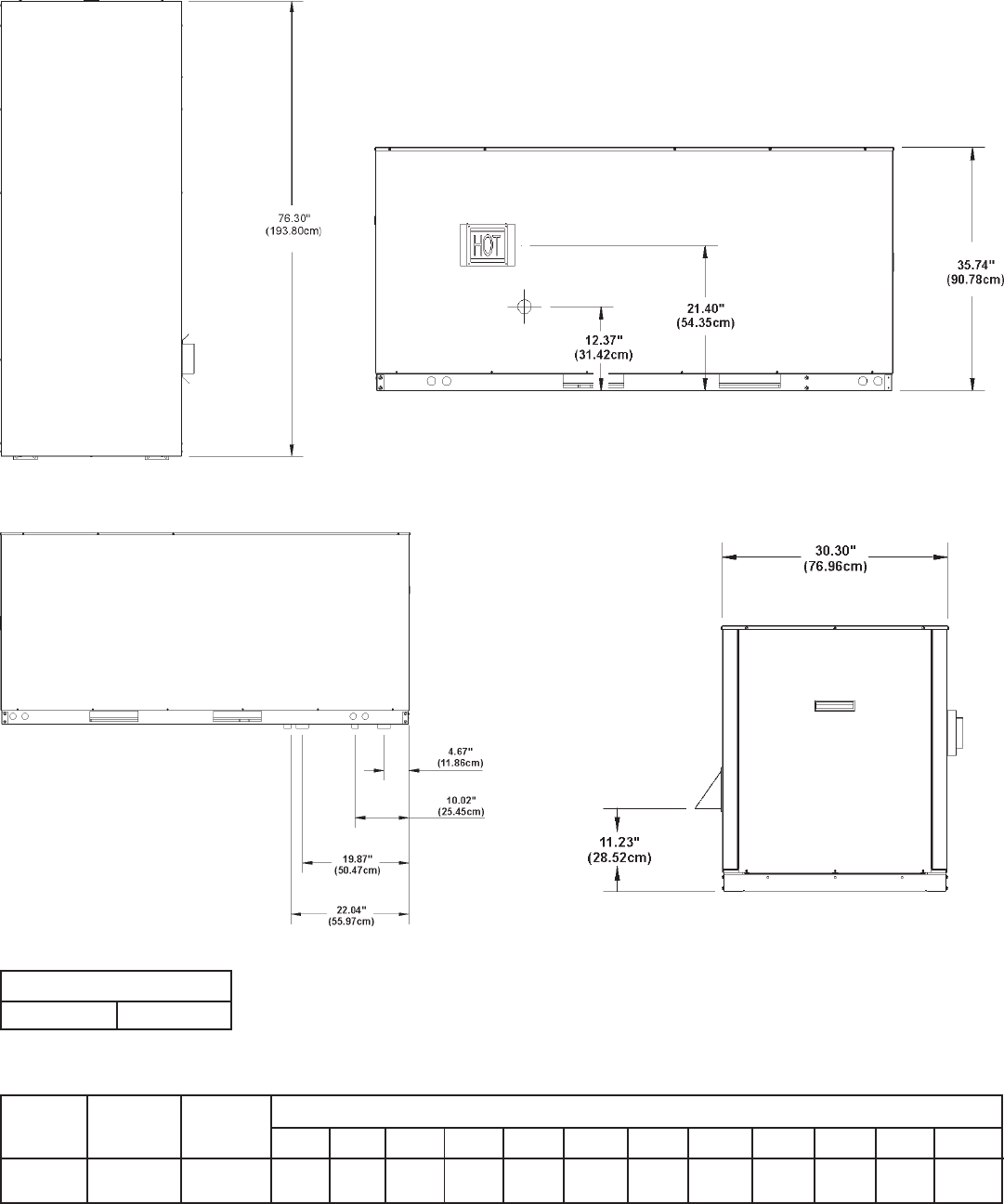
ROOFTOP SRT80-120NE
ROUGH-IN-DIMENSIONS
GAS VALVE PIPING
SRT80-120 1/2" NPT
Recovery capacities are based on heater performance at 80% thermal efficiency.
Table 1. RECOVERY CAPACITIES - NATURAL GAS / L.P.
Approx.
BTU Gallon
Model Input Capacity 30 40 50 60 70 80 90 100 110 120 130 140
SRT80-120
120,000 80 388 291 233 194 166 145 129 116 106 97 90 83
35.17 kwh 303L (1469) (1102) (882) (734) (628) (549) (488) (439) (401) (367) (341) (314)
TEMPERATURE RISE - DEGREES °F - GALLONS PER HOUR (LPH)
FRONT VIEW
TOP VIEW
LEFT SIDE VIEW
RIGHT SIDE VIEW










