User's Manual

Operating Manual
Depending on your requirements the pump
and drive (if supplied) may arrive mounted on
a baseplate. Our standard baseplates have
pre-drilled fixing holes to accept base retaining
bolts.
To provide a permanent, rigid support for
securing the pump unit a foundation is required,
this will also absorb vibration, strain or shock on
the pumping unit.
Foundation Size
The foundation should be approximately
150mm longer and wider than the mounting
base of the unit. The depth of the foundation
should be proportional to the size of the pump
unit (pump complete with drive and baseplate).
For example, a large pump unit foundation
depth should be at least 20 times the diameter
of the foundation bolts.
Bolt Location Dimensions
The location and sizes of the relevant bolting
down holes can be provided on a certified
drawing from your supplier.
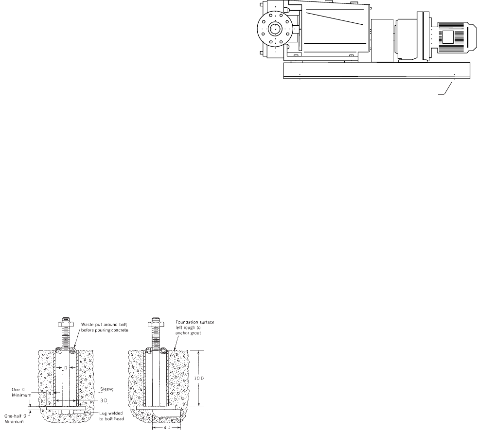
Typical Foundations Bolts
The drawing below shows two methods for
foundation bolt retaining. The sleeve allows for
'slight' lateral movement of the bolts after the
foundation is poured. Use rag or paper to
prevent the concrete from entering the sleeve
while the foundation is poured. A minimum of
14 days is required to allow the curing of the
concrete prior to operation.
D = Diameter of foundation bolts
4.2 Pump and Base Foundations
Before the pump is installed it is advisable to
consider the following:
Always - Ensure that the mounting
surface is flat to avoid distortion
of the baseplate. This will
cause pump/motor shaft
misalignment and pump/motor
unit damage.
Check - pump shaft to motor shaft
alignment once the baseplate
has been secured and adjust
as necessary.
Note : Always allow at least one metre for
pump access/maintenance all around the pump.
Weight - Consider the weight of the
pump, drive and lifting gear
requirements.
- Ensure that there is an
adequate electrical supply
close to the pump drive unit.
This should be compatible with
the electric motor selected.
4.3 Installation
Baseplate Fixing
Holes
Electrical
Supply
12