User's Manual

Operating Manual
KS Key & Shaft Dia
4
Holes'U'
Ø
S
T
BB
KW Key Width
F Shaft Dis
J
G
HT
HB
Q
E
C
U
14
14
14
14
14
14
14
All dimensions in mm
D
L
N
P
M
R
T
150
150
180
180
180
190
190
S
184
184
210
210
210
220
220
R
255
255
275
275
275
370
370
Q
35
35
35
35
35
40
40
P
150
150
180
180
180
260
260
N
225
225
279
279
279
266
266
M
122
138
125
145
145
163
188
L
597
628
699
719
747
832
857
KW
10
10
14
14
14
14
14
KS
41
41
48.5
48.5
48.5
51.5
51.5
G
80
80
110
110
110
110
110
F
38
38
45
45
45
48
48
C
163
338*
163
338*
195
315*
195
315*
195
225
225
A
75
100
100
100
150
150
150
PUMP
MODEL
D4-0095
D4-0140
D5-0200
D5-0290
D5-0290
D6-0420
D6-0600
B
170
520*
170
530*
190
550*
190
550*
190
225
225
HB
115
115
135
135
135
155
155
HT
211
211
255
255
255
295
295
E
20
20
20
20
20
20
20
D
307
307
371
371
371
429
429
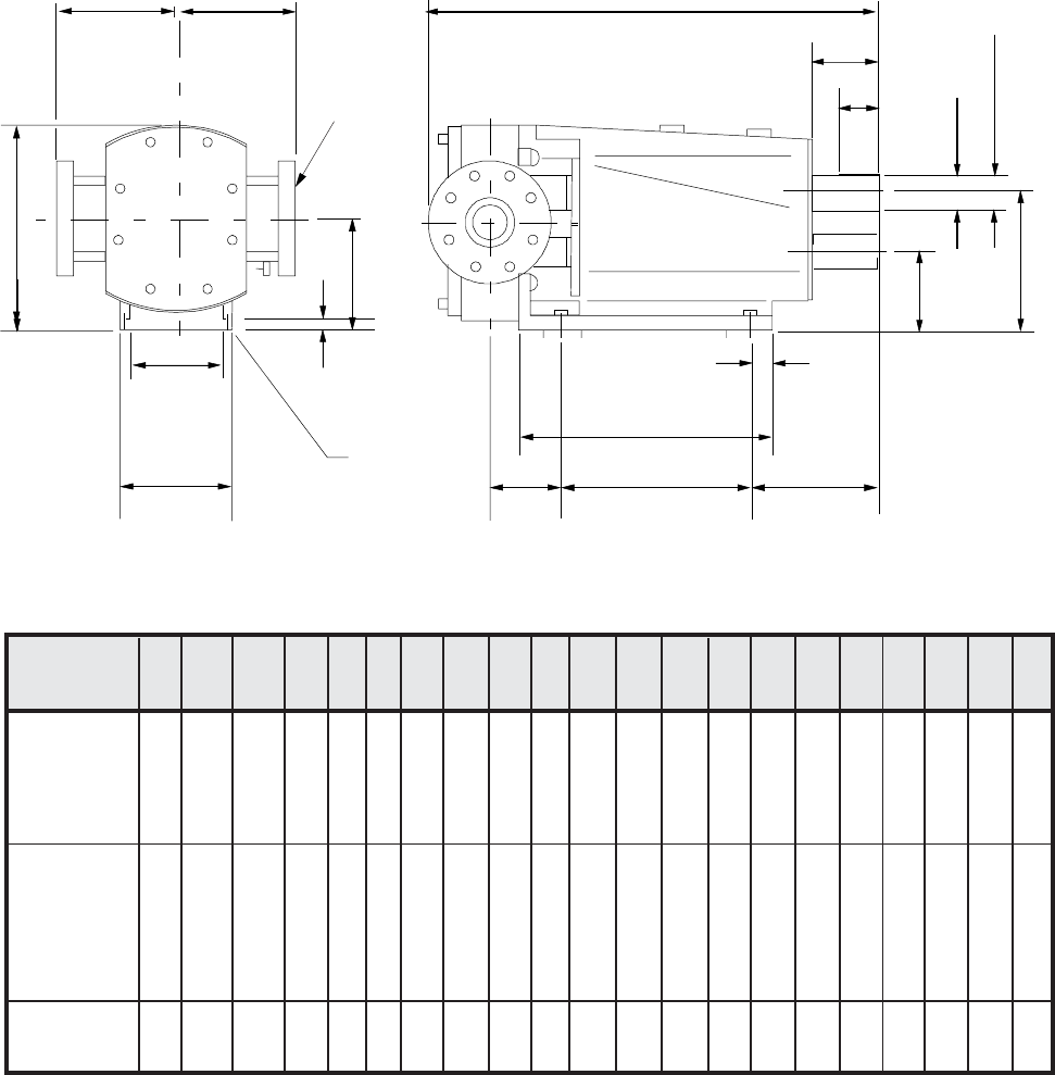
The above dimensions are for guidance only and should not be used for installation
purposes. Certified dimensions are available upon request.
* = Dimensions when priming adaptors are fitted
'A' Port
Size
3.3 Pump Dimensions
J
63
63
70
70
70
70
70
8