- SPX Cooling Technologies, Inc. CoolingTower Specification Sheet

Marley
/
Sigma 1000/1200 Cooling Tower
/
3
S
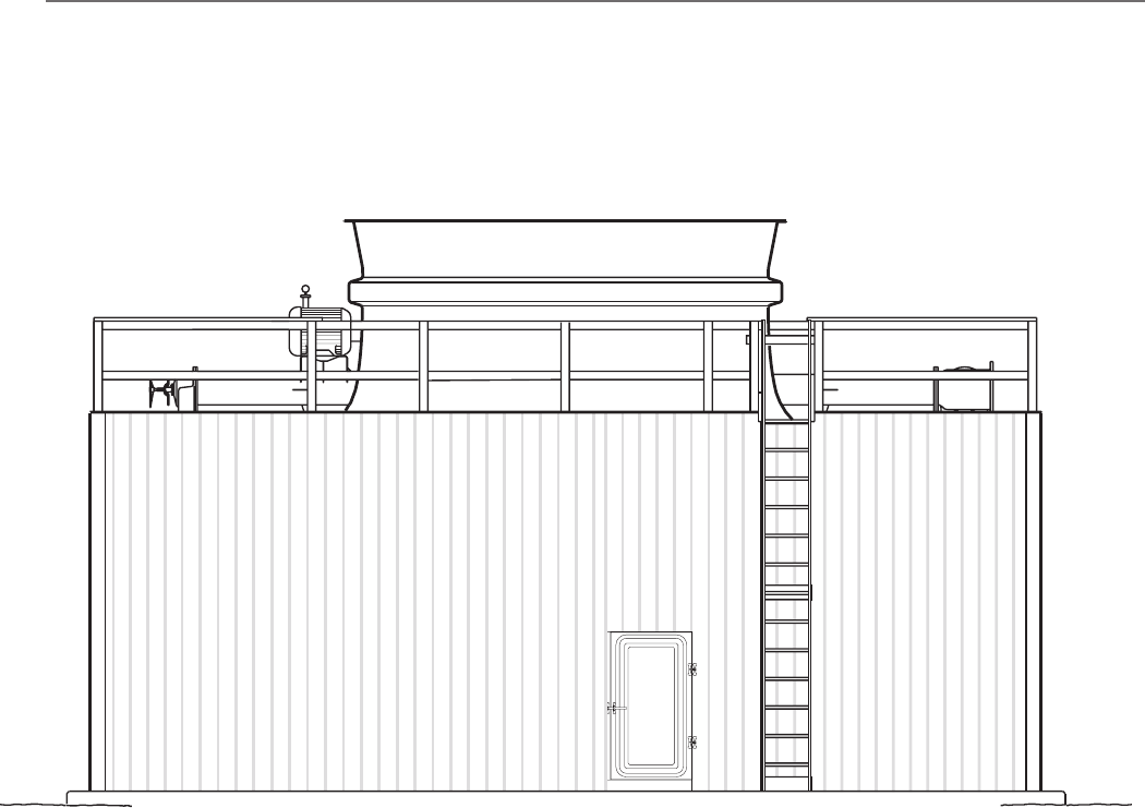
igma 1000/1200 towers are field-erected, general
purpose crossflow wood cooling towers, designed to
serve normal air conditioning and refrigeration systems
as well as medium sized industrial loads. They evolve
from the crossflow concept of towers pioneered by
Marley in 1938, and incorporate over 65 years of design
advancements that our customers have found valuable.
Sigma cooling towers represent the current state of the
art in this cooling tower category.
This publication not only relates the language to use
in describing an appropriate Sigma cooling tower—but
also defines why certain items and features are important
enough to specify with the intention of insisting upon
compliance by all bidders. The left hand column of pages
15 through 29 provides appropriate text for the various
specification paragraphs, whereas the right hand column
comments on the meaning of the subject matter and
explains its value.
Pages 15 through 22 indicate those paragraphs which
will result in the purchase of a cooling tower which will
not only accomplish the specified thermal performance,
but which will include normal operation and maintenance-
enhancing accessories and features. It will also
incorporate those standard materials which testing and
experience has proven to provide best results in normal
operating conditions.
Pages 23 through 29 provide some paragraphs
intended to add those features, components, and
materials that will customize the tower to meet the user's
requirements.
Space does not permit definition and explanation
of all of the possible options that can be applied to the
Sigma. SPX Cooling Technologies realizes that you, the
purchaser, must be happy with the tower's characteristics,
and we are prepared to provide—or provide for—any
reasonable enhancement that you are willing to define
and purchase.
Your needs will become part of the continuing
improvement of this Marley product line.










