Installation Guide

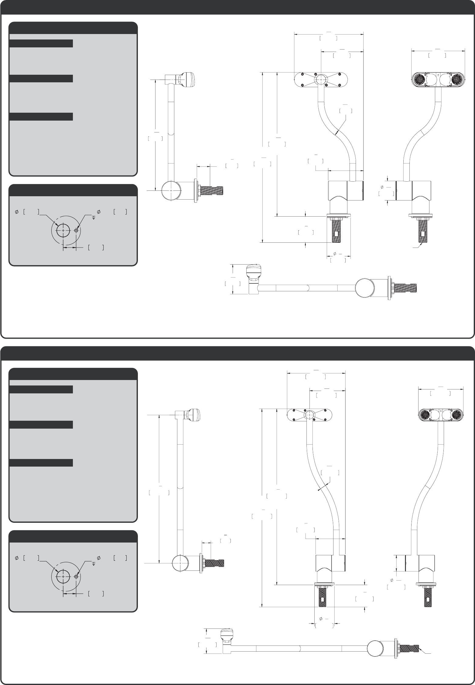
SE-577-SD ROUGH-IN DIAGRAM
SPEAKMAN
®
DIMENSIONS SUBJECT TO CHANGE WITHOUT NOTICE.
NOTES:
COMPLIANCE:
CONNECTIONS:
ANSI/ISEA Z358.1
• Inlet: ½” NPT MALE
Installer to supply necessary inlet connections.
FLOW DATA:
FLOW PRESSURE PSI (BAR) 30 (2.07)
FLOW RATE GPM (LPM) 2.6 (9.8)
WALL ROUGH IN
1"
25mm
THRU HOLE
.250in
6mm
.25in [6mm] MIN
1"
25mm
1
1
4
"
32mm
MAX MOUNTING
THICKNESS
16
3
16
"
411.2mm
2
1
2
"
63.1mm
2
1
4
"
57.2mm
3
3
8
"
85.3mm
9
16
"
15mm
4
1
16
"
102.6mm
13
11
16
"
348.1mm
6
9
16
"
167.2mm
2
13
16
"
71.6mm
ACTIVATED POSITION
1
13
16
"
46.5mm
5
1
16
"
129.2mm
1/2" NPT THREAD
10
9
16
"
268mm
CLOSED POSITION
SE-577-SD-ADA ROUGH-IN DIAGRAM
SPEAKMAN
®
DIMENSIONS SUBJECT TO CHANGE WITHOUT NOTICE.
NOTES:
COMPLIANCE:
CONNECTIONS:
ANSI/ISEA Z358.1
• Inlet: ½” NPT MALE
Installer to supply necessary inlet connections.
FLOW DATA:
FLOW PRESSURE PSI (BAR) 30 (2.07)
FLOW RATE GPM (LPM) 2.6 (9.8)
WALL ROUGH IN
1"
25mm
THRU HOLE
.250in
6mm
.25in [6mm] MIN
1"
25mm
32mm
MAX MOUNTING
THICKNESS
16
3
4
"
425.10mm
2
13
16
"
71.64mm
1/2" NPT THREAD
1
13
16
"
46.50mm
5
1
16
"
129.15mm
22
3
8
"
568.31mm
3
3
8
"
85.30mm
2
1
2
"
63.13mm
11
16
"
16.90mm
2
1
4
"
57.15mm
4
1
16
"
102.64mm
19
7
8
"
505.18mm
6
9
16
"
167.22mm
ACTIVATED POSITION
CLOSED POSITION
1
1
4
"