Product Sheet

1100 Old Honeycutt Road, Fuquay-Varina, NC 27526
(919) 762-1000 www.southbendnc.com
Models:
P18N-X P18C-X
INTENDED FOR COMMERCIAL USE ONLY.
NOT FOR HOUSEHOLD USE.
OPTIONS and ACCESSORIES
MISCELLANEOUS
UTILITY INFORMATION
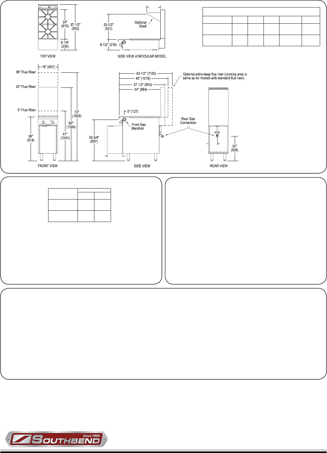
GAS: Each unit has a 1-1/4" front manifold that couples to the
adjacent sectional unit(s), and a 1" rear gas connection with a male
NPT connector. Minimum gas supply pressure is 7" W.C. for natural
gas and 11" W.C. for propane. All sectional units require a regulated
gas supply (a pressure regulator must be ordered separately). If
usingaexible-hosegasconnection,theinsidediameterofthehose
must not be smaller than the connector on the unit and must comply
with ANSI Z21.69, providing an adequate means of restraint to
prevent undue strain on the gas connection.
• Ifcastersareusedwithaexible-hosegasconnection,a
restraining device should be used to prevent undue strain
on the hose.
• Minimum clearance from noncombustible construction is
zero. Minimum clearance from combustible construction is
13" (330 mm) on sides and 6" (152 mm) on rear.
• Installation under a vented hood is recommended.
• Checklocalcodesforreandsanitaryregulations.
NOTICE:
Southbend has a policy of continuous product research and
improvement.Wereservetherighttochangespecicationsand
product design without notice. Such revisions do not entitle the buyer
to corresponding changes, improvements, additions or replacements
for previously purchased equipment.
External pressure regulator
Front rail options:
Cutouts in front rail for sauce pans
7-1/4" deep front rail (to match old
style sectional)
Square belly bar mounted on
7-1/4" deep front rail
Casters (front two casters lock)
Cable restraint kit (to restrict
movement when on casters)
24"or36"highueriser
Shelvesonueriser(oneon24"ue
riser,oneortwoon36"ueriser,10"
deep)
Tray or tubular shelves (12" deep)
Open-frame base with casters for
battery
Extra-deeprear-extendingueriser
Removable shelf inside cabinet
Removable, cast iron grate top
Battery spark ignition
Form P18-X Rev 10 (April/2014)
Dimensions shown in inches and (millimeters)
10"
(254)
6" (152)
*(+/- 1” tolerance)
14-3/4
(375)
Shipping Crate DimenSionS & Weight
moDel
WiDth height Depth Volume Weight
P18N-X
20"
(508)
21"
(533)
42.5"
(1080)
10.3 cu ft
(0.29 cu m)
150 lbs
(68.0 kg)
P18C-X
20"
(508)
45"
(1143)
42.5"
(1080)
22.1 cu ft
(0.63 cu m)
220 lbs
(99.8 kg)
moDel
gaS (Btu/hour)
n
atural propane
P18N-X 90,000 90,000
P18C-X 90,000 90,000
Solid shelving has
a depth of 10".
Tubed and Tray
shelving have a
depth of 11-1/8"..