Installation Guide

Table Of Contents
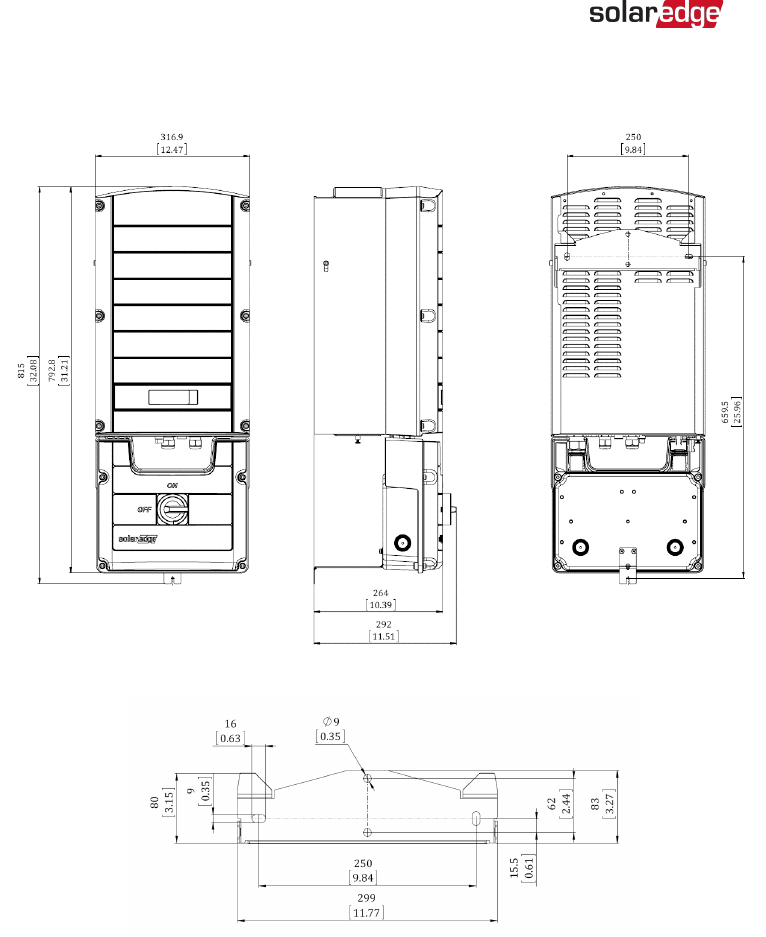
Appendix B: Mechanical Specifications
Figure 38: Three phase inverter with bracket - front, side and rear views
Figure 39: Inverter mounting bracket
-Three Phase System Installation Guide MAN-01-00002-4.3
100Appendix B: Mechanical Specifications