User manual

26 - INSTALLAZIONE 914779637/B
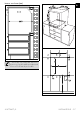
Ingombri dell’apparecchio (mm)