Instruction manual
Manuals
Brands
Smeg Manuals
Major Appliances
Oven Linea
56
57
58
59
60
61
62
63
64
65
INST
ALLA
TION - 137
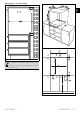
91477A081/A
e
A
min
. 603 mm
B
560 - 564 mm
C
583 - 585 mm
D
9 - 11 mm
Em
i
n
.
5
m
m
F
121 - 1105 mm
G
min. 560 mm
H
min
. 594 mm
co
Cutout for power cord (min. 6 cm
2
)
jb
Electrical connection bo
x
wb
W
ooden bar (recommended)
1
...
...
63
64
65