User manual

INSTALLAZIONE - 51914779559/C
i
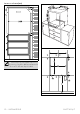
Ingombri dell’apparecchio (mm)