Instruction manual

100 - INSTALLATION 914779559/C
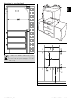
Fastening bushings
1. Remove the bushing covers on the front of
the appliance.
2. Mount the appliance into the recess.
3. Secure the appliance to the cabinet using
screws.
4. Cover the bushings with the previously
removed covers.
Appliance overall dimensions (mm)