User manual

40 - INSTALLAZIONE 914779557/C
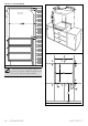
Incasso a colonna (mm)
*Assicurarsi che nella parte superiore/
posteriore il mobile abbia una apertura
di circa 35-40 mm di profondità.