Instruction manual

60 - INSTALLATION 914779553/C
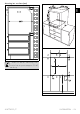
Mounting under worktops (mm)
A min. 603 mm
B 560 - 564 mm
C 583 - 585 mm
D 9 - 11 mm
Emin. 5 mm
F 121 - 1105 mm
G min. 560 mm
H min. 594 mm
co
Cutout for power cord (min. 6 cm
2
)
jb Electrical connection box
If the appliance is to be built-in under a
worktop, a wooden bar has to be
installed order to use the seal that is
glued to the back of the front panel to
prevent water or other liquids leaking in.
*Make sure that the piece of furniture
top/rear part has an opening approx.
60 mm deep.