Operation Manual

NL37
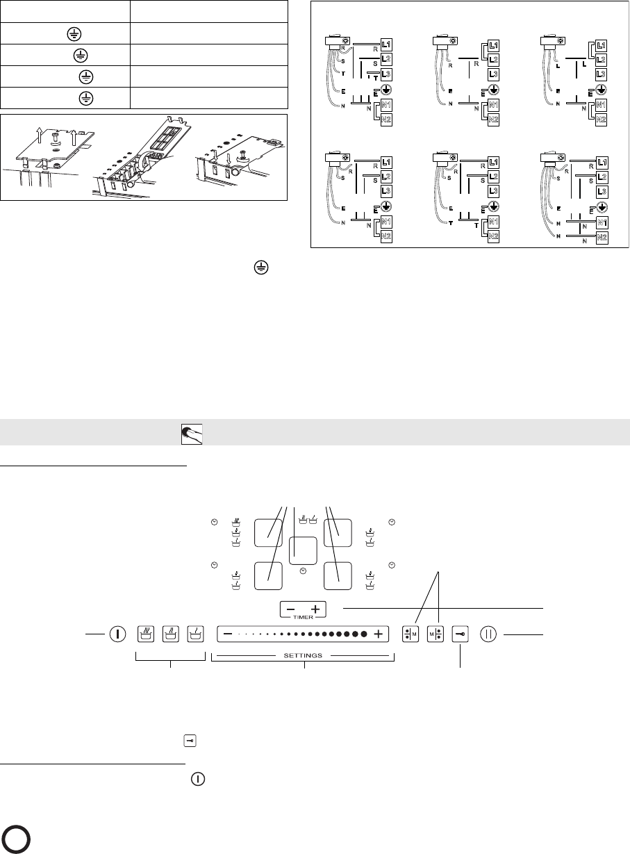
Sluit de geel/groene aardleiding aan op de klem met het symbool .
Bovengenoemde leiding moet langer zijn dan de andere.
1. Verwijder het deksel van het klemmenblok (A) door de schroef los te draaien en steek het deksel in het scharnier (B) van het klemmenblok.
2. Strip ongeveer 70 mm van de kabelbekleding van het netsnoer af.
3. Strip ongeveer 10 mm van de kabelbekleding van de draden af. Steek het netsnoer daarna in de kabelklem en sluit de draden op het klemmenblok aan volgens
het aansluitschema naast het klemmenblok.
4. Bevestig het netsnoer door middel van de kabelklem.
5. Sluit het deksel (C) en schroef het vast op het klemmenblok met de verwijderde schroef.
Bij elke aansluiting op de netvoeding voert de kookplaat gedurende enkele seconden een automatische controle uit.
Breng de aansluiting op het net tot stand via een meerpolige schakelaar met een afstand tussen de contacten van minimaal 3 mm.
Beschrijving van het bedieningspaneel
Het bedieningspaneel is voorzien van tiptoetsen: voor het gebruik is het voldoende om het overeenkomstige symbool aan te raken (u hoeft niet krachtig te drukken).
Eerste gebruik / na uitval van de elektrische stroom
Nadat de kookplaat is aangesloten op het elektriciteitsnet, is het bedieningspaneel geblokkeerd (het lampje boven de toets brandt).
Om het paneel te deblokkeren houdt u de toets 3 seconden ingedrukt. Het lampje gaat uit en de kookplaat kan nu normaal werken.
Inschakeling / uitschakeling kookplaat
Om de kookplaat in te schakelen houdt u de toets ongeveer 2 seconden ingedrukt: het lampje boven de toets gaat branden en er verschijnen streepjes binnen de
rondjes die de kookzone aangeven.
Om de kookplaat uit te schakelen, drukt u op dezelfde toets tot de kookplaat uitgaat. Alle kookzones worden uitgeschakeld.
Kabels Aantal x doorsnede
220-240 V ~ +
3 x 4 mm
2
220-240 V 3 ~ +
4 x 1,5 mm
2
380-415 V 3N ~ +
5 x 1,5 mm
2
380-415 V 2N ~ +
4 x 1,5 mm
2
GEBRUIKSAANWIJZING
Als binnen 10 seconden geen enkele functie wordt geselecteerd, wordt de kookplaat automatisch uitgeschakeld.
230 V
230 V
230 V
230 V
230 V
230 V
230 V
230 V
230 V
230 V
230 V
380-415 V 3N ~ 220-240 V ~
AU en VK
220-240 V ~
380-415 V 2N ~
220-240 V 3 ~ (alleen Belgiƫ)
380-415 V 2N ~
(alleen Nederland)
CBA
Om de kookzones te kiezen en in te schakelen
Inschakeling/
uitschakeling van
de kookplaat
Om de kookwekker
in te stellen
Om de kookplaat op
pauze te zetten
Touchscreen Om het bedieningspaneel te blokkerenOm een van de automatische functies in te
Selecteren van de functie Multizone
i










