Operation Manual

NL36
Controleer na het uitpakken van het apparaat of het tijdens het transport geen beschadigingen heeft opgelopen en neem, in geval van problemen, contact op met de
leverancier of de Klantenservice.
VOORBEREIDING VAN HET MEUBEL VOOR INBOUW
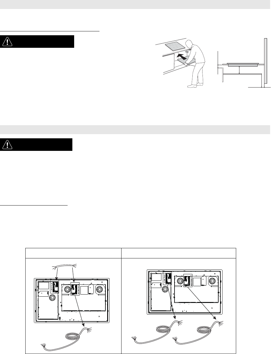
Aansluiting op het klemmenblok
De kookplaat is reeds voorzien van twee netsnoeren 5 x 2,5 mm
2
. De instructies zijn meegeleverd in de netsnoerzak.
Sluit de snoeren aan op de twee klemmenblokken in het onderste gedeelte van het product.
BELANGRIJK: gebruik alleen bij een aansluiting van 400 V 3N~ slechts één netsnoer (door dit op het klemmenblok van de elektronische hoofdmodule aan te sluiten)
naast de bedrading van 3 x 1,5 mm
2
om het hoofdklemmenblok op het klemmenblok van de elektronische hulpmodule aan te sluiten. Zie voor de elektrische
aansluiting de bijgeleverde instructies bij de bedrading van 3 x 1,5 mm
2
.
Gebruik voor de elektrische aansluiting een kabel van het type H05RR-F zoals aangegeven is in onderstaande tabel.
INSTALLATIE
WAARSCHUWING
- Installeer een scheidingspaneel
onder de kookplaat.
- Het onderste gedeelte van het
apparaat mag na installatie niet
toegankelijk zijn.
- Als er onder de kookplaat een oven
geïnstalleerd wordt, geen
scheidingspaneel monteren.
• Installeer de kookplaat niet boven een afwasmachine of wasmachine, zodat de elektronische schakelingen niet in contact komen met stoom of vocht; hierdoor
kunnen de schakelingen beschadigd worden.
• Houd u voor de afstand tussen de onderkant van de kookplaat en het scheidingspaneel aan de afmetingen in de afbeelding.
• Voor een correcte werking van het apparaat mag de minimaal vereiste opening tussen werkblad en bovenkant van het meubel nooit afgedekt worden.
• Voer eerst alle zaagwerkzaamheden in het meubel uit voordat u de kookplaat op zijn plaats zet en verwijder alle houtkrullen en zaagsel.
ELEKTRISCHE AANSLUITING
WAARSCHUWING
- Koppel het apparaat los van het elektriciteitsnet.
- Het apparaat moet geïnstalleerd worden door een gekwalificeerd technicus die volledig op de hoogte
is van de geldende veiligheids- en installatievoorschriften.
- De fabrikant kan niet aansprakelijk gesteld worden voor letsel aan personen of dieren of schade aan voorwerpen die het gevolg is van het niet
naleven van de voorschriften uit dit hoofdstuk.
- Het netsnoer moet lang genoeg zijn om de kookplaat te kunnen verwijderen uit het werkblad.
- Verzeker u ervan dat de spanning die vermeld is op het typeplaatje op de bodem van het apparaat overeenkomt met de netspanning in de
woning waar het apparaat geïnstalleerd zal worden.
- Gebruik geen verlengsnoer.
min. 5 mm
min. 20 mm
min. 5 mm
3 x 1.5 mm
2
400 V 3N ~ 230 V ~ / 230-240 V ~ / 400 V 2N ~ / 230 V 3 ~










