User Manual

Installation
56
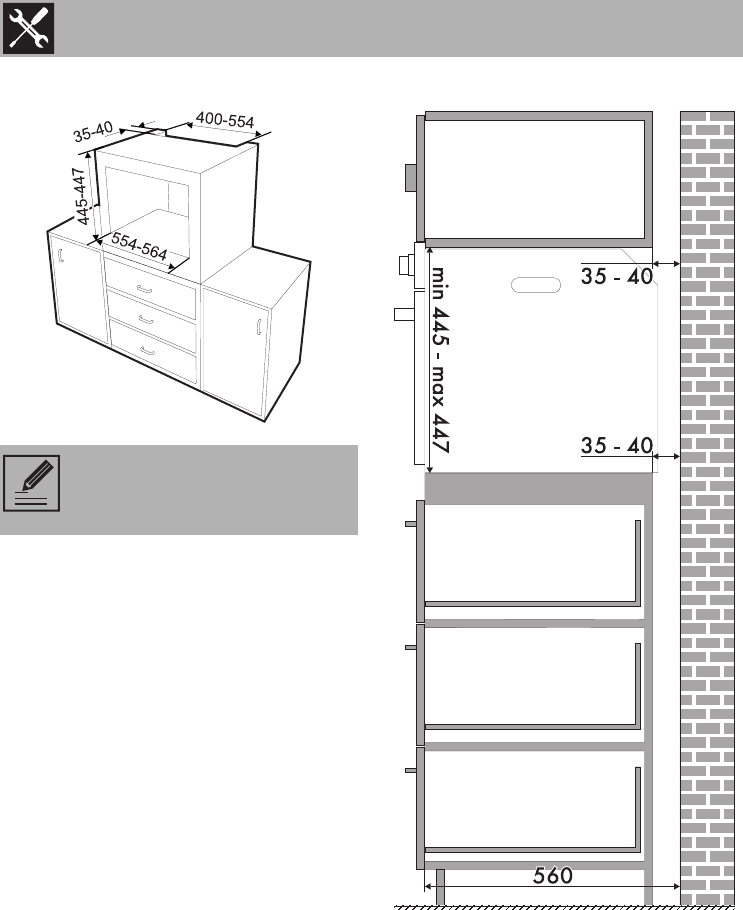
Mounting into a column (mm)
Make sure that the piece of
furniture top/rear part has an
opening approx. 35-40 mm deep.