User Manual
Manuals
Brands
Smeg Manuals
All Ovens
45cm Victoria Aesthetic Compact Electric Built-In Combi-Steam Oven
47
48
49
50
51
52
53
54
55
56
Installation
55
EN
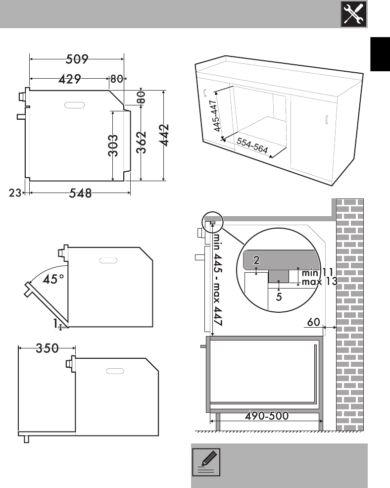
(side view)
Mounting under worktops (mm)
Make sure that the piece of
furniture rear/bottom part has an
opening of approx. 60 mm.
1
...
...
51
52
53
54
55
...
56