User manual
Table Of Contents
92 - INSTALLATION 914779401/A
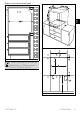
Einbau unter der Arbeitsfläche (mm)
A min. 603 mm
B 554 - 564 mm.
C 583 - 585 mm.
D 9 - 11 mm.
Emin. 5 mm
F 121 - 1105 mm.
G min. 560 mm
H min. 594 mm
co
Schlitz für Versorgungskabel (min. 6 cm
2
)
jb Gehäuse der elektrischen Anschlüsse
Wenn das Gerät unter einer
Arbeitsplatte versenkt werden soll, muss
eine Holzleiste installiert werden, um
die Verwendung der Klebedichtung im
hinteren Bereich der Bedienblende zu
gewährleisten und dadurch ein
eventuelles Eindringen von Wasser
oder anderen Flüssigkeiten zu
vermeiden.
*Prüfen, ob die Unter-/Rückseite des
Möbels eine Öffnung mit einer Tiefe von
60 mm aufweist.