Instruction manual
Manuals
Brands
Smeg Manuals
Major Appliances
Oven Cortina
11
12
13
14
15
16
17
18
19
20
Table Of Contents
PRECAUTIONS
General safety instructions
For this appliance
Appliance purpose
This user manual
Manufacturer’s liability
Identification plate
Disposal
To save energy
How to read the user manual
DESCRIPTION
General Description
Control panel
Other parts
Accessories
Advantages of steam cooking
USE
Preliminary operations
Using the accessories
Using the oven
Analogue programmer
Direct Steam cooking
Cooking advice
Traditional cooking information table
Direct Steam cooking information table
CLEANING AND MAINTENANCE
Cleaning the appliance
Cleaning the door
Cleaning the oven cavity
Extraordinary maintenance
INSTALLATION
Electrical connection
Positioning
INSTALLA
TION - 43
91
4779401/A
e
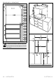
Appliance overall dimensions (mm)
1
...
...
16
17
18
19
20
21
...
22