User manual

Instruções para a instalação
17
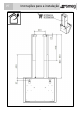
O exaustor é fornecido com todos os acesrios necessários à
instalação. Para a distância mínima entre o plano inferior do exaustor e
o tipo de placa de cozedura, consulte a imagem na gina 9. O exaustor
é fornecido com uma válvula de o retorno dos fumos, assegure-se de
que a mesma se possa abrir e fechar livremente.
Para uma instalação fácil , é recomendado seguir as operações
abaixo indicadas:
1) O exaustor deve ficar centrado em relação à placa de cozedura,
figura pagina 9.
2) Prenda os 2 ganchos niveladores com buchas de expansão
fornecidas. Este sistema de fixação deve ser utilizado na parte
traseira do exaustor nos furos L1, figura página 9.
3) Remova os filtros antigordura, posicione o exaustor na parede,
marque a posição de referência dos furos L1.
PT