User manual
Lufttilslutningssystemer
20
UDSUGENDE
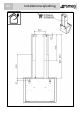
Aftrækkenes maksimale længde er 850 mm. Bøj de to fastgørelser til
forankring af det nederste aftræk 90°, figur side 12. Anbring de 2
beslag til det øverste aftræk ved den øverste angivne grænse, figur
side 11 og 12. Afmærk de to huller til fastgøring af beslagene på
væggen. Lav hullerne og fastgør beslagene med de medfølgende
rawplugs. Tilslut røgudledningskanalen med en indvendig diameter
Ø 150 mm til motorindløbets udgang. Kanalen medfølger ikke.
Udledningskanalen må ikke have en diameter, der er mindre end
120 mm. Anbring forsigtigt de to aftræk på emhætten. Træk let i det
øverste aftræk, så det nederste aftræk kan fastgøres til emhætten
med de 2 skruer. Løft det øverste aftræk til den definerede øverste
grænse. Blokér det øverste aftræk til beslagene med 2 skruer, billede
side 13.
BEMÆRK: fjern de to lugtfiltre fra emhætten.
DA