User manual
Installationsanweisungen
18
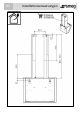
4) Die Abzugshaube von der Wand nehmen und die 2 Bohrungen
ausführen.
5) Die Befestigungssysteme an der Wand befestigen und die
Spreizdübel einschrauben.
6) Die Abzugshaube an den Bohrungen L1 einhängen und
mithilfe der Einstellschrauben die Nivellierung vornehmen.
7) Die Bohrungen L2 für die sichere Befestigung der Abzugshaube
an der Wand markieren.
8) Die Abzugshaube von der Wand nehmen und die 2 Bohrungen
ausführen L2.
9) Die Befestigungssysteme an der Wand befestigen und die
Spreizdübel einschrauben.
10) Die Abzugshaube an den Bohrungen L1 einhängen, dann die 2
Spreizschrauben in den Löchern L2 bis zum Anschlag festziehen, um
die Abzugshabe sicher zu befestigen.
DE