Instruction Manual
Instructions pour l’installation
17
La hotte est fournie avec tous les accessoires nécessaires pour
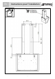
l’installation. Pour la distance minimale entre le plan inférieur de la
hotte et le type de plaque de cuisson, référez-vous à l’image à la
page 9. La hotte est fournie avec un clapet anti-retour de fumées,
assurez-vous que celui-ci puisse s’ouvrir et se fermer librement.
Pour une installation simple, nous recommandons de suivre les
opérations reportées ci-dessous :
1) Il faut centrer la hotte sur la plaque de cuisson, figure page 9.
2) Prendre 2 crochets de nivellement avec les chevilles à
expansion fournies. Ce système de fixation doit être utilisé à
l'arrière de la hotte dans les trous L1, figure page 9.
3) Retirez les filtres à graisse, placez la hotte sur le mur, tracez la
position de référence des trous L1.
FR