Instruction manual

Installation instructions
18
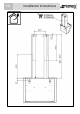
4) Remove the hood from the wall and drill the 2 holes.
5) Secure the mounting systems to the wall by tightening the
expansion plugs.
6) Hang the hood from the holes L1 and level it using the
adjustment screws.
7) Mark the position of the holes L2 on the wall for fastening the
hood.
8) Remove the hood from the wall and drill the 2 holes L2.
9) Secure the mounting systems to the wall by tightening the
expansion plugs.
10) Hang the hood from holes L1, secure the hood by tightening the 2
expansion screws in the holes L2.
EN