User manual

Инструкции по установке
17
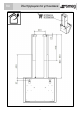
Вытяжка поставляется со всеми необходимыми монтажными
принадлежностями. Информацию по минимальному
расстоянию от нижней поверхности вытяжки до варочной
панели смотрите на странице 9. Поскольку вытяжка
поставляется с обратным клапаном, проверьте, чтобы он
свободно открывался и закрывался.
Для упрощения монтажа выполните нижеприведенные
действия:
1) Вытяжку необходимо центрировать относительно варочной
панели (см. рисунок на странице 9 ).
2) Используйте 2 нивелирующих дюбеля-крюка из комплекта
поставки. Эта крепежная система находится с задней
стороны вытяжки (отверстия L1 , рисунок на странице 9).
3) Снимите жироулавливающие фильтры, приложите вытяжку
к стене и разметьте позиции для отверстий L1.
RU