User manual
Istruzioni per l’installazione
17
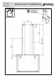
La cappa viene fornita con tutti gli accessori necessari
all’installazione. Per la distanza minima tra il piano inferiore della
cappa ed il tipo di piano cottura fare riferimento all’immagine a
pagina 9. La cappa viene fornita con una valvola di non ritorno fumi,
assicurarsi che essa possa aprirsi e chiudersi liberamente.
Per una facile installazione si consiglia di seguire le operazioni sotto
riportate:
1) La cappa va centrata rispetto al piano cottura, figura pagina 9.
2) Prendere 2 ganci livellanti con tasselli ed espansione in
dotazione. Questo sistema di fissaggio va utilizzato sul retro
della cappa nei fori L1, figura pagina 9.
3) Togliere i filtri antigrasso, posizionare la cappa sulla parete,
tracciare la posizione di riferimento dei fori L1.
IT