User manual
Installationsanweisungen
17
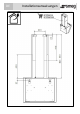
Die Abzugshaube wird mit dem erforderlichen Zubehör für die Installation
geliefert. Für den Mindestabstand zwischen der unteren Fläche der
Abzugshaube und der Ausführung des Kochfeldes wird auf das Bild auf
Seite 9 verwiesen. Die Abzugshaube ist mit einem Rauchrückschlagventil
versehen, damit sie sich unbehindert öffnen und schließen kann.
Für eine leichte Installation wird empfohlen, die unten angeführten
Tätigkeiten auszuführen:
1) Die Abzugshaube muss gemäß der Abbildung auf Seite 9 mit
dem Kochfeld zentriert werden.
2) Die 2 mitgelieferten Nivellierhaken mit Spreizdübel nehmen.
Dieses Befestigungssystem muss an den Bohrungen L1 an der
Rückseite der Abzugshaube benutzt werden (siehe die
Abbildung auf Seite 9).
3) Die Fettfilter entfernen, die Abzugshaube an der Wand
positionieren und die Position der Löcher L1 markieren.
DE