User manual

Luchtaansluitsystemen
20
LUCHTAFVOER
De maximale lengte van de schoorstenen is 850 mm. Buig de twee
appendages 90° om de onderste schoorsteen te bevestigen, zie
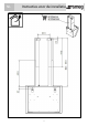
afbeelding pagina 12. Plaats de 2 beugels voor de bovenste schoorsteen
op de aangegeven bovengrens, zie afbeeldingen pagina's 11 en 12.
Markeer de twee gaten op de muur voor het bevestigen van de beugels.
Boor en bevestig de beugels met de meegeleverde expansiepluggen.
Sluit het rookafvoerkanaal met een binnendiameter van Ø150 mm aan
op de motorinlaat. Het afvoerkanaal wordt niet meegeleverd. De
diameter van het afvoerkanaal mag niet kleiner zijn dan 120 mm. Plaats
het schoorsteenpaar voorzichtig op de afzuigkap. Haal de bovenste
schoorsteen er iets af om de onderste schoorsteen met 2 schroeven aan
de afzuigkap te kunnen bevestigen. Breng de bovenste schoorsteen
omhoog tot de bepaalde bovengrens. Bevestig de bovenste schoorsteen
met 2 schroeven aan de beugels, zie afbeelding pagina 13.
LET OP: verwijder de twee geurfilters van de afzuigkap.
NL