User manual
Installationsvejledning
18
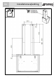
4) Tag emhætten ned fra væggen, lav de 2 huller.
5) Udfør forankringen af systemet ved at stramme rawpluggene.
6) Hæng emhætten op på hullerne L1, og udfør nivelleringen ved at
dreje på stilleskruerne.
7) Afmærk hullerne L2 på muren til sikker forankring af emhætten.
8) Tag emhætten ned fra væggen, lav de 2 huller L2.
9) Udfør forankringen af systemet ved at stramme rawpluggene.
10) Hæng emhætten op på hullerne L1, fastgør emhætten sikkert
ved at stramme de 2 reguleringsskruer i hullerne L2.
DA