User manual

Instrucciones para la instalación
17
La campana se suministra con todos los accesorios necesarios para
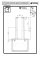
la instalación. Para la distancia mínima entre la superficie inferior de
la campana y el tipo de encimera de cocción, consulte la imagen de
la página 9. La campana se suministra con una válvula de retención
de humos; asegúrese de que pueda abrirse y cerrarse libremente.
Para una instalación sencilla, se recomienda seguir las operaciones
indicadas a continuación:
1) La campana debe centrarse respecto a la encimera de cocción,
figura página 9.
2) Coja los 2 ganchos de nivelación con los tacos de expansión
suministrados. Este sistema de fijación se debe utilizar en los
orificios L1 de la parte trasera de la campana, figura página 9.
3) Retire los filtros antigrasa, coloque la campana en la pared y
marque la posición de referencia de los orificios L1.
ES