User manual
Instrukcje dotyczące montażu
18
4) Zdjąć okap ze ściany, wywiercić 2 otwory.
5) Zamontować systemy mocujące na ścianie, wkręcając śruby
kołków rozporowych.
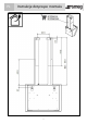
6) Powiesić okap na otworach L1 i wypoziomować za pomocą śrub
regulacyjnych.
7) Naszkicować na ścianie otwory L2 , aby zamocować okap w
warunkach bezpieczeństwa.
8) Zdjąć okap ze ściany, wywiercić 2 otwory L2.
9) Zamontować systemy mocujące na ścianie, wkręcając śruby
kołków rozporowych.
10) Zamocować bezpiecznie okap na otworach L1, wkręcając do
oporu 2 śruby kołków rozporowych w otworach L2.
PL