Brochure

Y
W
X
X
1
U1
U
D
C
RE
2 x P
Attacco
QF
B1
B
Raddrizzatore
a onda intera
(Tipo AC)
2
x ø3.4
Foro di
montaggio
≈ 300
Y
W
X
X
1
U1
U
2 x ø3.4
Foro di
montaggio
C
RE
D
2 x P
Attacco
Raddrizzatore
a onda intera
(Tipo AC)
QF≈ 300
B
B
1
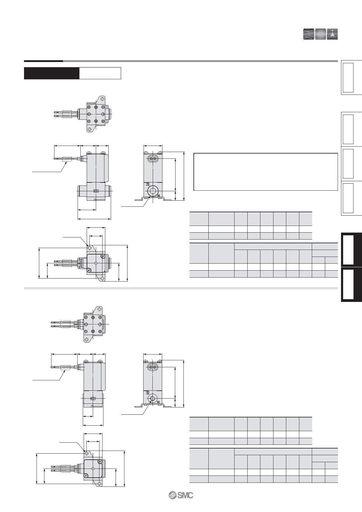
Con raccordi istantanei Grommet
Dimensioni
Per maggiori informazioni sull'uso dei raccordi istantanei e
delle tubazioni adeguate, fare riferimento alla pagina 15 e
consultare i raccordi istantanei della serie KJ nel catalogo.
Le informazioni sulla serie KJ possono essere scaricate
dal seguente sito web di SMC, http://www.smc.eu
Modello
Raccordo istantaneo
P
Dimensioni della squadretta di montaggio
28
33
14
16.5
17
19.5
17
20
UU1 X1 YWX
11
14
34
39
VDW1
VDW2
ø3.2, ø4
ø4, ø6
Grommet
Connessione elettrica
15.5
17
30.5
35
QR
Modello
Raccordo istantaneo
P
32
36
17
20
9.5
10.5
BB1 ECD
46
53
15
20
VDW1
VDW2
ø3.2, ø4
ø4, ø6
11
13.5
F
[mm]
Modello
Attacco
P
Dimensioni della squadretta di montaggio
28
33
14
16.5
17
19.5
17
20
UU1 X1 YWX
11
14
34
39
VDW1
VDW2
M5(M6)
M5(M6)
Grommet
Connessione elettrica
15.5
17
30.5
34
QR
Modello
Attacco
P
20
22
10
11
9.5
9.5
BB1 ECD
46
51
15
20
VDW1
VDW2
M5(M6)
M5(M6)
11
13.5
F
[mm]
Dimensioni attacco M5/M6
Grommet
Resina
Materiale corpo
Specifiche
Per aria
Costruzione
Dimensioni
Per acqua
Per vuoto
AriaAria
Vuoto
medio
Vuoto
medio
Acqua
Elettrovalvola compatta a 2 vie ad azionamento diretto
Serie VDW
9










