Datasheet

37
Serie CJ2K
Leitungsanschluss M5 x 0.8
øCA
ø
CB
Abdeckungsfläche
LZ
LX
LY
LB
LH
2 x øLC
Montagebohrung
KA
MM
NN
H
FGA
Leitungsanschluss 2 x M5 x 0.8
A
LT
NAY
X
Z + Hub
LS + Hub
S + Hub
NB Y
X
LT
NN
F
GB
Abdeckungsfläche
FZ
FX
FY
FB
2 x øFC
Montagebohrung
BA
0
−0.3
BA
0
−0.3
KA
NN
MM
Ansicht E
GA Leitungsanschluss 2 x M5 x 0.8
Z + Hub
S + HubH
ANAF
FT
NB
GB
BB
0
−0.3
BB
0
−0.3
Befestigungsmutter
Befestigungsmutter
Kolbenstangenmutter
Kolbenstangenmutter
Befestigungsmutter
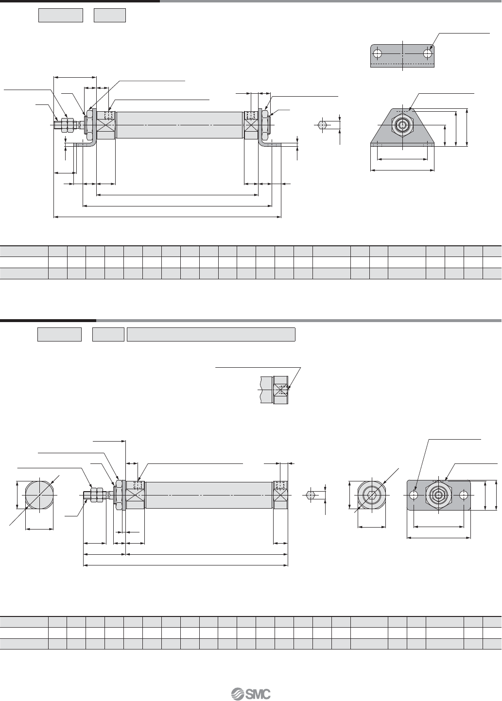
CJ2KF
Kolben-Ø
–
Hub Anschlussposition im Zylinderdeckel
Z
CJ2KM
Kolben-Ø
–
Hub
Z
[mm]
Flansch vorne (F)
Doppelte Fußbefestigung [m]
Kolben-
stangenabschnitt
Ansicht E
Kolben-
stangenabschnitt
Kolben-Ø
A F GA GB H KA LB LC LH LS LT LX LY LZ MM NA NB NN S X Y Z
10
15 8 8 5 28 4.2 21.5 5.5 14 64 2.3 33 25 42 M4 x 0.7 12.5 9.5 M10 x 1.0 46 6 9 74
16
15 8 8 5 28 5.2 23 5.5 14 65 2.3 33 25 42 M5 x 0.8 12.5 9.5 M12 x 1,0 47 6 9 75
Nähere Angaben zur Befestigungsmutter siehe Seite 12. (SNJ-016B für ø10, SNKJ-016B für ø16)
Anschlussposition im Zylinderdeckel
axiale Position (R)
∗ Die Gesamtlänge des Zylinders bleibt unverändert.
[mm]
Nähere Angaben zur Befestigungsmutter siehe Seite 12. (SNJ-016B für ø10, SNKJ-016B für ø16)
Kolben-Ø
A BA BB CA CB F FB FC FT FX FY FZ GA GB H KA MM NA NB NN S Z
10
15 15 12 17 14 8 17.5 5.5 2.3 33 20 42 8 5 28 4.2 M4 x 0.7 12.5 9.5 M10 x 1.0 46 74
16
15 18.3 18.3 20 20 8 19 5.5 2.3 33 20 42 8 5 28 5.2 M5 x 0.8 12.5 9.5 M12 x 1,0 47 75