Datasheet

7
Series CJ2
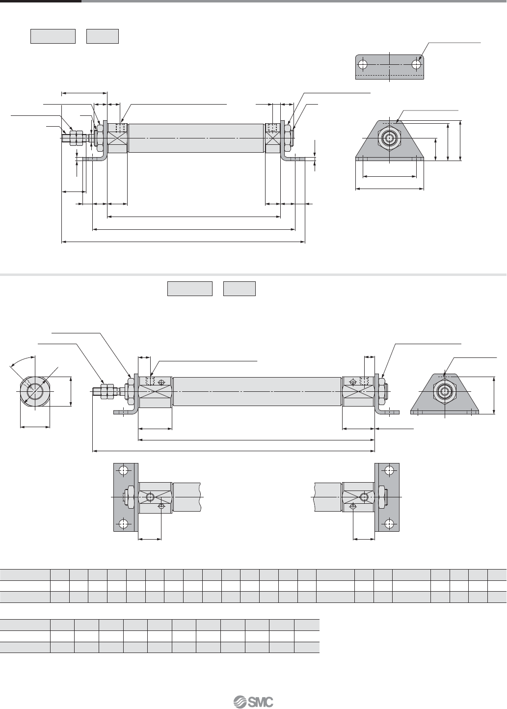
øD
LT
LX
LZ
LH
LB
LY
4 x øLC
Montagebohrung
H
FGA
A
XY NA
S
 + Hub
LS + Hub
Z + Hub
Leitungsanschluss 2 x M5 x 0.8
GB F
NN
LT
XYNB
Abdeckungsfläche
ø
C
45°
Abdeckungsfläche
LB
WA
Leitungsanschluss 2 x M5 x 0.8
GA
NA
Z
 + Hub
S + Hub
NB
WB
GB
 0
–
0.3
B
 0
–0.3
B
Ansicht E
Kolbenstangenmutter
 
Befestigungsmutter
 Befestigungsmutter
 Befestigungsmutter
NN
MM
Kolbenstangenmutter
 
Befestigungsmutter
CJ2M
Kolben-Ø
–
Hub
Z
Mit pneumatischer Dämpfung: CJ2M
Kolben-Ø
–
Hub
AZ
mit pneumatischer Dämpfung/
Andere Abmessungen als die nachstehend genannten entsprechen denen der oben stehenden Tabelle.
 Weitere Informationen zur Befestigungsmutter siehe Seite 12.
[mm]
doppelte Fußbefestigung (M)
Ansicht E
Kolben-Ø
A D F GA GB H LB LC LH LS LT LX LY LZ MM NA NB NN S X Y Z
10
15 4 8 8 5 28 15 4.5 9 60 1.6 24 16.5 32 M4 x 0.7 12.5 9.5 M8 x 1.0 46 5 7 86
16
15 5 8 8 5 28 23 5.5 14 65 2.3 33 25 42 M5 x 0.8 12.5 9.5
M10
 x 
1.0
47 6 9 90
Kolben-Ø
B C GA GB LB NA NB WA WB S Z
10
15 17 7.5 6.5 16.5 21 20 14.4 13.4 65 93
16
18.3 20 7.5 6.5 23 21 20 14.4 13.4 66 94
Abmessungen










