Owner manual
Table Of Contents

Smart Power
®
Systems
A. C. MODULAR GENERATOR SYSTEM
Page 14 of 50
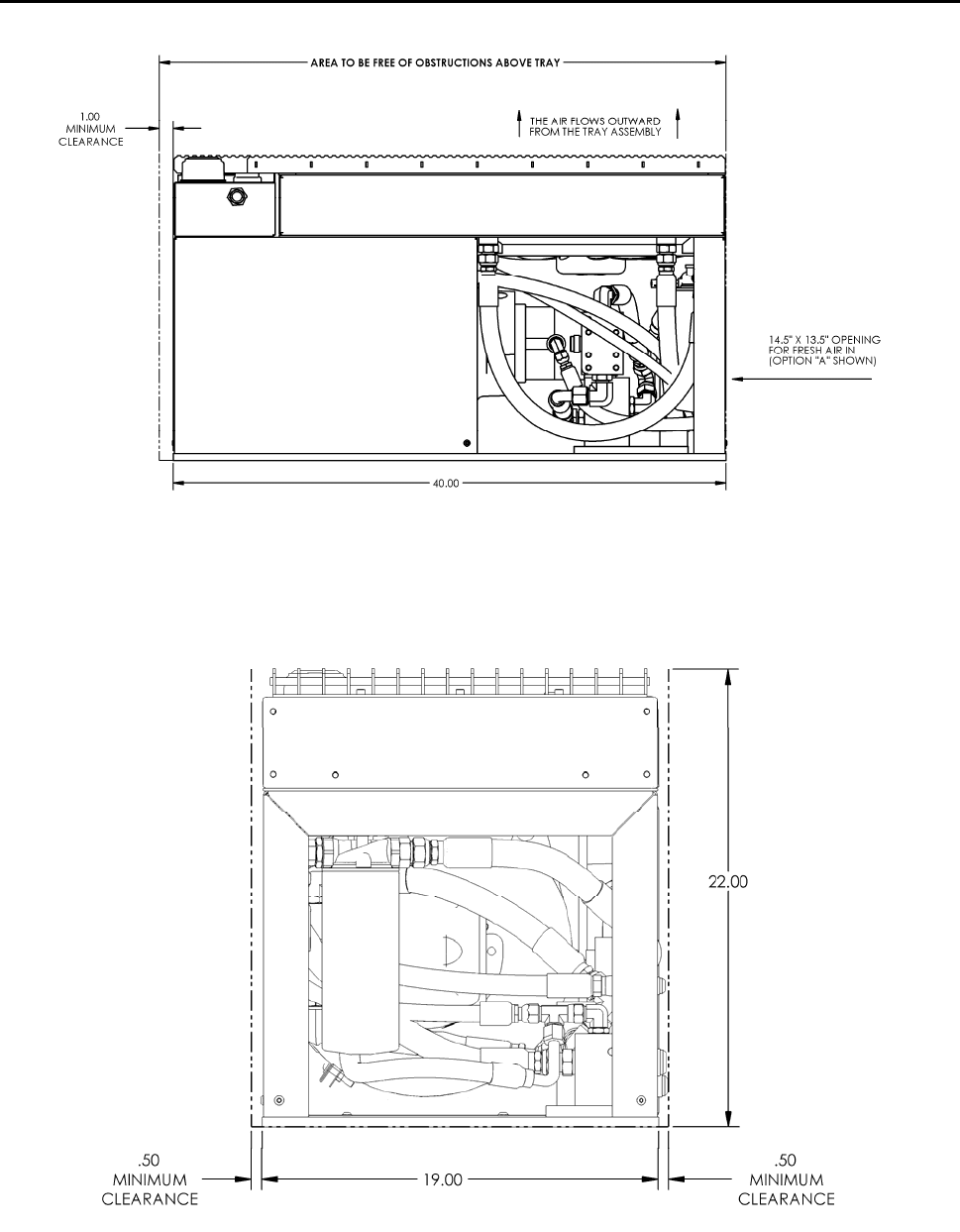
Front view of HR-20, HR-25, and HR-30 tray assemblies showing tray dimensions
and minimum clearance for proper ventilation
Figure 4
Side view of HR-20, HR-25, and HR-30 tray assemblies showing tray dimensions and
minimum clearance for proper ventilation
Figure 5










