Owner manual
Table Of Contents

Smart Power
®
Systems
A. C. MODULAR GENERATOR SYSTEM
Page 13 of 50
Do not position hoses with tight bend radii. Consult the hose manufacturer’s
installation guidelines. Tight bends may kink and cause serious damage to the
system and will void the system’s warranty.
Use caution when tightening the hose ends to prevent the hose from becoming
twisted.
Never install a 90° fitting at the pump inlet or outlet. Avoid the use of flow
restricting fittings.
Do not form loops in the hose that may collect air or kink. Run hoses as straight as
possible (but not taut) between connections.
Do not exceed hose lengths of 20 feet.
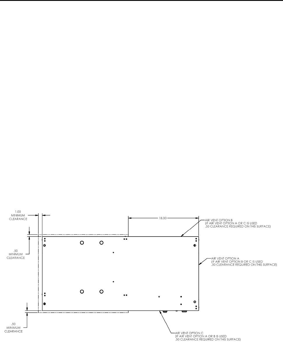
6. SPS models HR-20, HR-25, and HR-30 can be mounted on top of a vehicle, in the
open, without requiring any additional coverings. Reference Figure 3, Figure 4 and
Figure 5 for the minimum clearances around the perimeter of the generator tray
assembly. Also, do not position any obstructions directly in front of the system’s oil
cooler. If the system cannot be installed without maintaining the minimum
clearances as indicated, or if you have any questions relative to the installation of
these systems, contact Smart Power
®
Systems at (231) 832-5525.
Bottom view of HR-20, HR-25, and HR-30 tray assemblies showing minimum
clearance for proper ventilation and the three possible air vent options
Figure 3










