User Manual

INTREPID
3
BOILER LOCATION
Provide a level, solid foundation for the boiler. Location should be near
the chimney so that the Flue Pipe Connector or Breeching to the chim-
ney is short and direct.
A. The foundation must be capable of supporting the weight of
the boiler when filled with water:
B. The boiler can be installed on both combustible and non-combustible
floors, but must NOT be installed on or above carpeting.
C. The Intrepid Boiler has full wet base sections which surround fire-
box for maximum heat absorption of burning fuel, and low floor
temperature.
D. If boiler is to be located over buried conduit containing electric wires
or telephone cables, consult local codes or the National Board of Fire
Underwriters for specific requirements.
CAUTION: NEVER BURN GARBAGE OR PAPER IN THE UNIT AND
NEVER LEAVE COMBUSTIBLE MATERIAL AROUND IT.
MINIMUM CLEARANCE
Provide accessibility clearance of 24" from surfaces requiring servicing
(top and front) and 18" on any side requiring passage. The boiler shall
be installed with the following MINIMUM clearances from combustible
materials:
A. CHIMNEY CONNECTOR-18"
B. BACK AND SIDES- 6" EXCEPT as limited by 18" clearance
from chimney connector
NOTE: Except in closets and alcoves, clearances above in (A) and
(B) may be reduced by providing forms of protection as specified in
NFPA 31, latest edition.
CHIMNEY REQUIREMENTS
A. The chimney must be constructed in accordance with all local appli-
cable codes and the National Board of Fire Underwriters. See boiler
models and rating table shown on page 2 for chimney sizes.
B. Check chimney condition.
Existing chimneys and stacks may have deteriorated; without repairs
their use would be hazardous. Before connecting to an old chimney
or stack:
1. Clean it.
2. Inspect it thoroughly.
3. Remove obstructions.
4. Replace worn sections of metal stacks.
5. Seal bad masonry joints.
6. Repair damaged linings.
C. Where more than one appliance vents into a common chimney, the
area of the common breeching should at least equal the area of the
largest appliance flue plus 50% of the additional flue areas.
D. Breeching area must not be reduced at connection into chimney.
Breeching must be inserted into, but not beyond, inside of chimney
liner.
E. Chimney height shall extend at least 3 feet above where it passes
through the roof of the building, and at least 2 feet above any ridge
within 10 feet of the chimney.
F. The use of a vent cap, where permitted by code, gives additional
protection against adverse wind conditions and precipitation.
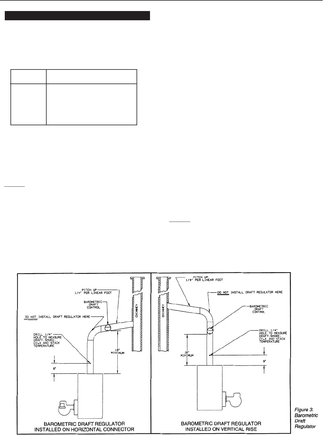
G. Flue Connection: Connect flue pipe between top of boiler and chim-
ney. Horizontal sections of flue pipe must be pitched upward to the
chimney at least 1/4" per foot. Flue must be inserted into, but not
extend beyond, the inside wall of the chimney flue. Install draft regu-
lator in flue pipe, as shown in figure 3.
AIR SUPPLY AND VENTILATION (see NFPA 31, latest edition)
Sufficient air for combustion and ventilation in the boiler room must be
provided. Failure to do this will result in poor combustion, heavy soot-
ing and health hazards.
CAUTION
: AN OIL-FIRED UNIT SHALL BE CONNECTED TO A
VENT HAVING A SUFFICIENT DRAFT AT ALL TIMES TO ENSURE
SAFE AND PROPER OPERATION OF THE UNIT.
Boiler Approximate Total Weight of Boiler
Size Assembly, filled with water
TR-20 440
TR-30 550
TR-40 660
TR-50 785
TR-60 895
TR-70 1000
INSTALLATION REQUIREMENTS