User Manual
Manuals
Brands
Slant/Fin Manuals
Equipment
Intrepid Steam
11
12
13
14
15
16
17
18
19
20
INTREPID
15
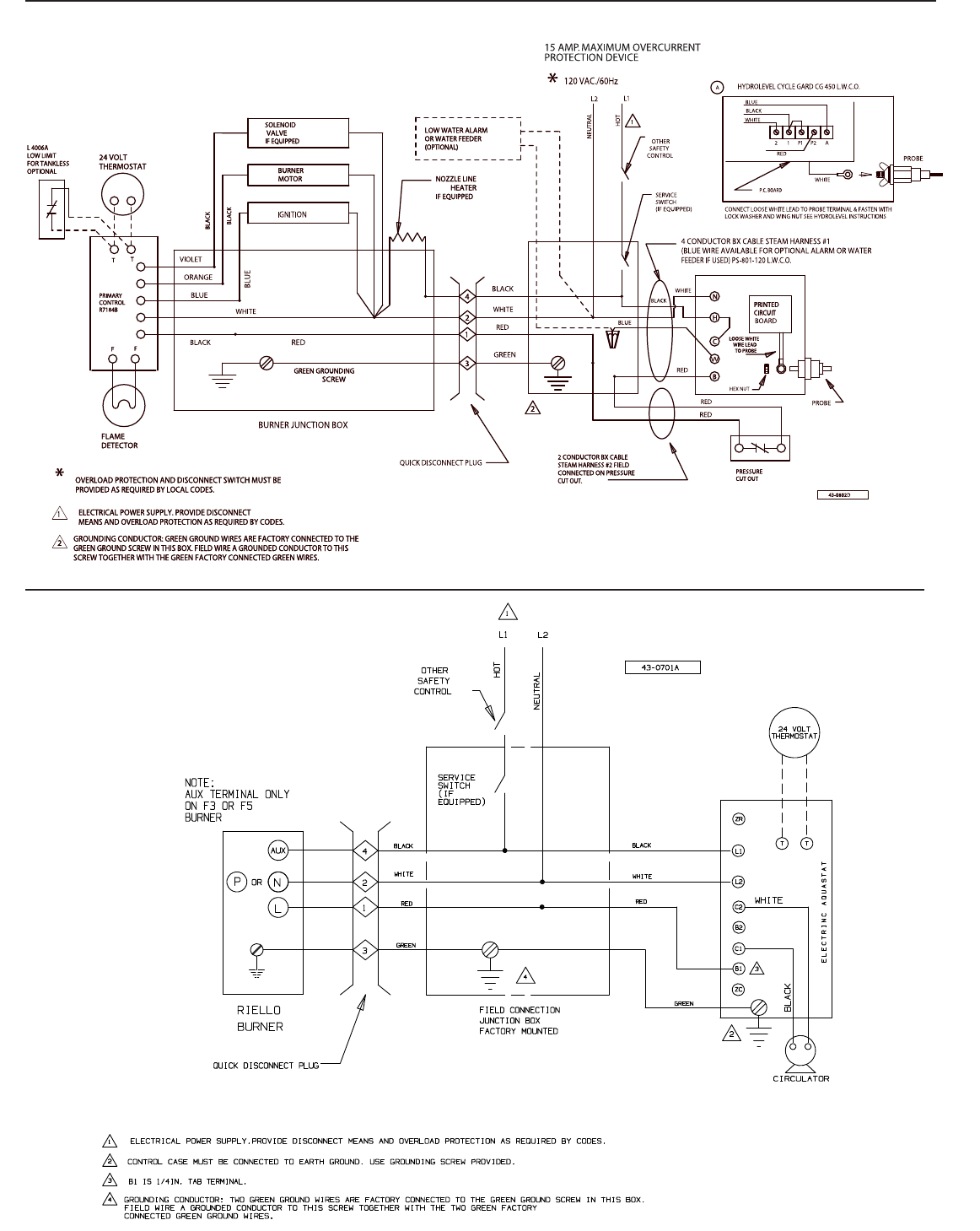
WIRING FOR P
A
CKA
GED STEAM BOILER
F
or alternate option PS-801-120 L.W
.C.O
.
or Hydrole
vel Cyc
le Gard 450 L.W
.C.O
.
BOILER WIRING DIA
GRAM FOR RIELLO
1
...
...
13
14
15
16
17
...
...
24