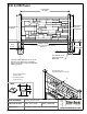
Specification
6.50"
3"
Inside
5"
69
"
96
" Max
Post Centers
5
" X 5"
Post
10
" - 12"
18" -
24
"
Hole Depth
18
"
51
"
95
"
Stiffener Length
Minimum top
of post to
ground level
Hole Diameter
Ground Level Ground Level
Approximate
Post Height
1.5" X 1.5" 18 Gauge Galvanized Steel Stiffener
ASTM A513
Post must be cut to
given approximate
dimension
2
"
Good Neighbor Fence:
Same stone pattern on both sides
Concrete footing diameter 10" to 12" min
and 18" to 24" deep min in accordance
with local conditions, codes, and standard
building practices.
Actual Panel Dimensions:
•
48"H X 94.25"W
Panel Weight: 60 lbs
•
Tolerances are: ±.5"
•
Caps
4'H X 8'W Panel
U.S. Patents: 7,478,797 / 7,635,114 Foreign Patents Pending
www.simtekfence.com
Date: Oct 15, 2013
Sheet 1 of 1
TM
Scale: not to scale
REV: D Barlocker
This drawing may not be altered or reproduced without the
permission of SimTek Fence
Model #:FP96X48

