Fibre Channel 3.5-Inch Solid State Drive Product Manual

Zeus
IOPS
3.5-Inch Fibre Channel Solid State Drive Product Manual Rev. 1.0 69
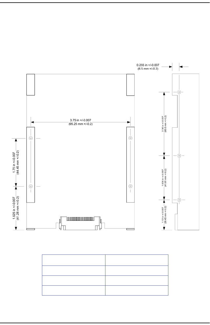
MOUNTING HOLE DIMENSIONS
Figure 11 shows relative locations of the mounting holes. Careful attention should be made to the
length of the mounting screws and the recommended torque to prevent damage to the enclosure; the
maximum screw penetration is 5 mm. The mounting screw threads are M3 and the recommended
torque is 0.5 Nm to 0.8 Nm.
Figure 11. Exterior Mounting Specifications
Underside Mounting Holes Side Mounting Holes
(4x) M3 Screws (6x) M3 Screws
Maximum Depth: 5.0mm Maximum Depth: 5.0mm
Maximum Torque: 0.8 Nm Maximum Torque: 0.8 Nm










